СЦБИСТ - железнодорожный форум, блоги, фотогалерея, социальная сеть
Ушел из жизни Крупицкий Адольф Зельманович
6 февраля 2026 года ушел из жизни Крупицкий Адольф Зельманович, более шести десятков лет проработавший в институте «Гипротранссигналсвязь». Всю свою трудовую деятельность А.З. Крупицкий посвятил проектному делу. После окончанию обучения в Ленинградском институте инженеров железнодорожного транспорта в 1959 году начал свою профессиональную деятельность в качестве старшего электромеханика дистанции сигнализации и связи на Казахской железной дороге. В 1960 году пришел на работу в институт на должность инженера, работал руководителем группы, главным инженером проектов.

Читать далее
Вернуться   СЦБИСТ - железнодорожный форум, блоги, фотогалерея, социальная сеть > Энциклопедия СЦБИСТа > Wiki
Закладки Поддержка Сообщество Комментарии к фото Сообщения за день
     
 
В мои закладки Подписка на тему по электронной почте Отправить другу по электронной почте Инструменты Статьи Поиск в этой Статье
  #1  

По умолчанию Инженерные сооружения железных дорог и промышленных предприятий

Инженерные сооружения железных дорог и промышленных предприятий

На сети железных дорог и на промышленных предприятиях железнодорожного транспорта эксплуатируется значительное число инженерных сооружений:

пассажирские платформы с навесом и без навеса; сооружения систем водоснабжения и канализации; транспортерные галереи подачи угля в здания котельных; дымовые трубы;

открытые крановые эстакады; а также пешеходные эстакады и заглубленные в грунт переходы; силосы для хранения песка и другие сооружения; опоры контактной сети электрифицированных железных дорог, пролеты которых на станциях достигают значительных размеров и др.

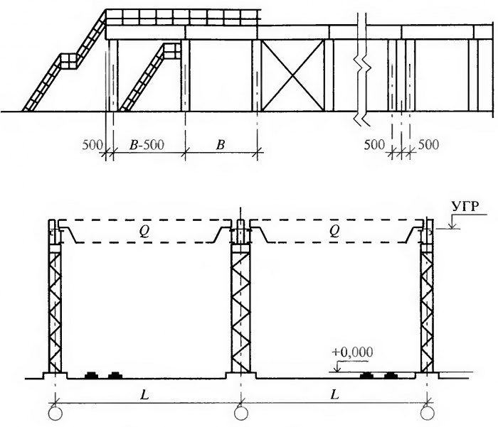
Пассажирские платформы сооружаются на станциях и остановочных пунктах. По расположению относительно пассажирского здания платформы разделяют на примыкающие к нему — основные и расположенные между перронными или просто приемоотправочными путями — промежуточные. В зависимости от расположения путей различают односторонние платформы, когда пути расположены с одной стороны, и двусторонние (островные) — при расположении путей с двух сторон.

В ряде случаев на основных платформах размещают вспомогательные вокзальные сооружения: помещения для грузового багажа, перронные санитарные узлы, торговые павильоны и киоски и др. Для защиты пассажиров от атмосферных осадков, а в южных районах от солнца над платформами устраивают навесы.


Рис. 1.11. Низкие пассажирские платформы: а — боковые и промежуточная; б — расположена на насыпи высотой до 1,5 м; в — на насыпи более 1,5 м; У — бортовая железобетонная стенка; 2 — стойка; 3 — плита; 4 — засыпка

Платформы бывают высокие и низкие (1100 или 200 мм от верха головки рельса соответственно). Высокие платформы сооружают на пассажирских станциях, а также раздельных и остановочных пунктах электрифицированных участков с интенсивным пригородным движением. Длину пассажирских платформ назначают исходя из наибольшей длины пассажирских составов. Ширина пассажирских платформ зависит от интенсивности и характера пассажиропотоков, числа и расположения выходов с платформ, размеров размещаемых на них устройств (павильонов, лестниц и т.д.). При наличии на платформах павильонов, входов в тоннели и других сооружений расстояние между крайней гранью этих сооружений и бортом платформы должно составлять не менее 2 м. Низкие платформы (рис. 1.11) могут сооружаться двух типов:

- с бортовыми железобетонными стенками и засыпкой между платформами; боковые и промежуточные на так называемых нулевых местах и на насыпях высотой до 1,5 м;

- из сборных железобетонных рам и предварительно напряженных плит (по типу высоких пассажирских платформ); на насыпях высотой более 1,5 м и в выемках.

Высокие пассажирские платформы (рис. 1.12) устраиваются на площадках в выемках или насыпях до 2 м. Платформы сооружаются из сборных железобетонных элементов в двух конструктивных вариантах: двухстоечные и одностоечные. Двухстоечные платформы могут иметь стойки, опирающиеся на фундаментные башмаки и сваи-стойки (забивные или устанавливаемые в пробуренную скважину). Одностоечные платформы имеют Т-образные стойки, опирающиеся на фундаментные башмаки Для безопасности персонала, производящего осмотр и ремонт ходовых частей стоящих у платформ вагонов, а также пассажиров, случайно оказавшихся на путях, высокие платформы устраивают с консольным выносом не менее 50 см в сторону пути от бортовой стенки или стоек. Покрытие платформ асфальтобетонное.

На всем протяжении платформы должны быть освещены, для чего на них устанавливают осветительные опоры.


К сооружениям систем водоснабжения и канализации относятся насосные станции, здания для очистки воды и водонапорные башни.

Насосные станции предназначены для подъема воды к очистным сооружениям или потребителю. Станции, забирающие воду из источника водоснабжения и подающие ее на очистку либо непосредственно в водонапорную башню или сеть, — насосные станции первого подъема. Для подачи воды после очистки в сеть служат насосные станции второго подъема.

В зависимости от расположения оборудования относительно поверхности земли насосные станции могут быть наземными, полузаглубленными и заглубленными (рис. 1.13).

Насосная станция состоит из машинного зала, хлораторной и бытовых помещений (при автоматическом управлении насосами необходимость в бытовых помещениях отпадает). В машинном зале размещаются насосы, двигатели, трубопроводы, задвижки, контрольно-измерительная аппаратура. Для монтажа оборудования в машинном зале устанавливается монорельс с тельфером или кран-балка Машинный зал оборудуется вытяжной вентиляцией При отсутствии поблизости ремонтной базы при станции предусматривается небольшая мастерская площадью 10... 15 м2 с кладовой для хранения смазочных и обтирочных материалов.


Рис. 1.13. Здания и сооружения водоснабжения: а — полузаглубленная насосная станция; б — заглубленная насосная станция; в водонапорная Оашня, 1 хлоратирная, 2 бункер для угля; 3 паровой котел; 4 — нагнетательная линия; 5 — паровой насос; 6 — всасывающая линия; 7 — кран-балка; 8 — защитная стенка; 9 — электронасос

На заглубленных насосных станциях строят цилиндрическую или коническую шахту и наземный павильон. Машинный зал в этом случае размещается на дне шахты, выполняемой из гидротехнического бетона или железобетона с последующей гидроизоляцией от напорных вод.

Иногда насосные станции совмещают с другими зданиями и сооружениями — котельными, компрессорными, электростанциями, водонапорными башнями, очистными установками.

Здание очистки воды предназначено для размещения в нем оборудования и устройств для осветления (отстаивания, коагуляции, фильтрации), обеззараживания (хлорирования), а иногда и умягчения воды

Водонапорные башни (рис. 1.13, в) устраивают для создания запаса воды и необходимого напора в разводящей сети. Водонапорные башни высотой 10...40 м состоят из несущего ствола, шатра и одного-двух резервуаров (баков) для воды объемом от 40 до 500 м3 и более, изготовленных из стали или железобетона. Шатры башен защищают воду от замерзания, а также служат для осмотра и ремонта баков. Стенки шатра делают из обычных стеновых материалов. В местах с благоприятными климатическими условиями или при наличии циркуляции воды в баках сооружают бесшатровые башни.

Транспортерные галереи предназначены для размещения конвейеров, с помощью которых производится перемещение сыпучих материалов Галереи представляют собой горизонтальные или наклонные сооружения с продольным углом наклона а, не превышающим 24 градуса (рис. 1.14). В зависимости от условий эксплуатации и требуемого температурного режима галереи устраивают отапливаемыми или неотапливаемыми.


Рис. 1.14. Схема транспортерной галереи

Галереи состоят из опор и пролетных строений. В состав пролетных строений входят несущие конструкции перекрытия и шатровая часть. Для несущих конструкций пролетных строений чаще всего применяются металлические фермы с параллельными поясами. В галереях, построенных до 70-х гг. 20 в., применялись несущие конструкции из прокатных и сварных двутавров с расположением конвейеров и элементов перекрытия на уровне верхних поясов.

При использовании в качестве несущих конструкций пролетных строений ферм применялись две схемы расположения ограждающих конструкций: с фермами, находящимися снаружи или внутри отапливаемого пространства. Недостаток первого варианта — опасность снижения эксплуатационной надежности металлоконструкций в условиях низких температур. Во втором случае конструкции подвергаются воздействию влаги, способствующей коррозионному износу стали. Повышению влажности способствует попадание воды, которой смывают с пола просыпанный с конвейера материал. Кроме того, в результате контакта нижнего пояса с наружным воздухом по элементам ферм образуются «мостики холода», что приводит к образованию конденсата в узлах ферм.

Стальные опоры, поддерживающие пролетные строения галерей подразделяются на плоские и пространственные. Пространственные опоры (анкерные) обеспечивают продольную устойчивость сооружения при температурных колебаниях. Остальные металлические опоры выполняют в виде плоских конструкций, обладающих незначительной жесткостью в направлении продольной оси галереи. Опыт эксплуатации галерей свидетельствует о том, что они относятся к наиболее повреждаемому классу сооружений. Повышенная повреждаемость обусловлена совместным воздействием ряда неблагоприятных факторов, включая динамические нагрузки и непосредственное влияние климатических температур.

Открытая крановая эстакада представляет собой инженерное сооружение, состоящее из колонн и горизонтального пролетного строения с установленными на них мостовыми кранами. Такие эстакады используют для механизации погрузочно-разгрузочных работ на складах промышленных предприятий железных дорог для материалов и изделий, хранение которых допускается на открытом воздухе (рис. 1.15). Габаритная схема эстакады определяется технологическим процессом и характеристиками мостового крана — грузоподъемностью, пролетом, режимом работы, высотой подъема груза и др.


Рис. 1.15. Открытая крановая эстакада


Открытые крановые эстакады представляют собой ряды колонн, связанных между собой подкрановыми конструкциями и вертикальными связями, обеспечивающими жесткость в продольном направлении и воспринимающими силы продольного торможения кранов. В поперечном направлении жесткость обеспечивается свободно стоящими, защемленными в фундаментах колоннами или жесткими ригелями-распорками, соединяющими надкрановые части колонн. Колонны открытых крановых эстакад устраивают сборными железобетонными или стальными при грузоподъемности крана более 32 т или высоте более 13 м. Подкрановые конструкции эстакад включают в себя подкрановые балки, тормозные конструкции, вертикальные вспомогательные фермы — аналогичные конструкциям одноэтажных производственных зданий.

Эксплуатационная надежность открытых крановых эстакад определяется, как правило, деформативностью оснований фундаментов колонн, особенно при отсутствии распорки по верху колонн.

Admin добавил 18.09.2012 в 13:52
Вы можете дополнить или изменить данную статью, нажав кнопку Редактор


Редакторы: Admin
Создано Admin, 18.09.2012 в 13:52
Последнее редактирование Admin, 18.09.2012 в 13:52
0 Комментария , 3900 Просмотров
Похожие темы
Тема Автор Раздел Ответов Последнее сообщение
[06-2011] Унификация соединений и пересечений путей промышленных предприятий Admin xx1 0 30.07.2012 12:06
Государственный институт по проектированию инженерных сооружений и промышленных предприятий путевого хозяйства и геологическим изысканиям Admin Wiki 0 01.03.2012 16:25
Переезды на пересечениях внутренних автомобильных дорог с железнодорожными путями промышленных предприятий ТП 509-032.90 Admin Путь, путевое хозяйство 1 25.07.2011 10:53
ПТЭ Сооружения и устройства железных дорог (демо) Artemmen Программное обеспечение и визуальные материалы 3 08.06.2011 11:38
[Учебное пособие] Сооружения и устройства железных дорог Толян Студенту-движeнцу 0 19.05.2010 18:49

 

Возможно вас заинтересует информация по следующим меткам (темам):


Здесь присутствуют: 1 (пользователей: 0 , гостей: 1)
 

Ваши права в разделе
Вы можете создавать новые темы
Вы не можете отвечать в темах
Вы не можете прикреплять вложения
Вы можете редактировать свои сообщения

BB коды Вкл.
Смайлы Вкл.
[IMG] код Вкл.
HTML код Выкл.
Trackbacks are Вкл.
Pingbacks are Вкл.
Refbacks are Выкл.



Часовой пояс GMT +3, время: 16:53.

Яндекс.Метрика Справочник 
сцбист.ру сцбист.рф

СЦБИСТ (ранее назывался: Форум СЦБистов - Railway Automation Forum) - крупнейший сайт работников локомотивного хозяйства, движенцев, эсцебистов, путейцев, контактников, вагонников, связистов, проводников, работников ЦФТО, ИВЦ железных дорог, дистанций погрузочно-разгрузочных работ и других железнодорожников.
Связь с администрацией сайта: admin@scbist.com
1 2 3 4 5 6 7 8 9 10 11 12 13 14 15 16 17 18 19 20 21 22 23 24 25 26 27 28 29 30 31 32 33 34 
Powered by vBulletin® Version 3.8.1
Copyright ©2000 - 2026, Jelsoft Enterprises Ltd.
Powered by NuWiki v1.3 RC1 Copyright ©2006-2007, NuHit, LLC Перевод: zCarot