15. Расположение электрического оборудования
Тяговый (главный) генератор, тяговые электродвигатели, вспомогательные электрические машины и аппараты, электроизмерительные приборы, аккумуляторная батарея,соединенные между собой по определенной схеме, составляют электрооборудование тепловоза.
Расположение аппаратов и приборов в высоковольтной камере показано на рис. 51.
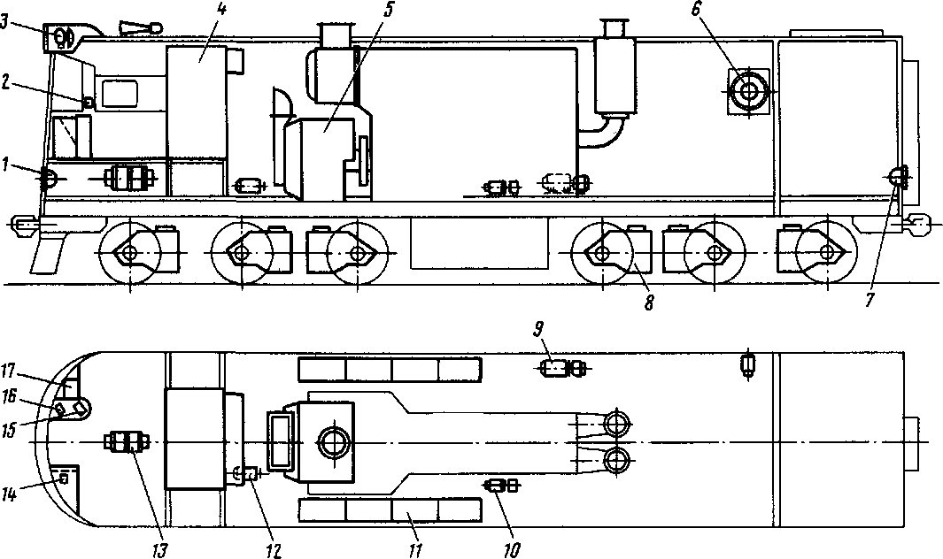
Тяговый генератор 5 (рис. 52) установлен в кузове тепловоза на общей раме с дизелем. Свободный конец его вала, соединенный с передним распределительным редуктором, приводит во вращение тахометрический агрегат 12 и двухмашинный агрегат 13. В задней части кабины машиниста, образуя ее стенку, установлена высоковольтная камера 4, в которой
расположена основная пускорегули-рующая и коммутационная аппаратура (контакторы, реле, резисторы, различные выключатели и переключатели).
В кабине машиниста в передней части находится пульт управления тепловозом. Пульт имеет приборную панель 17 и контроллер машиниста 15. На правой стенке кабины расположен выключатель 2 ослабления возбуждения, а на верхней панели пульта — Скоростемер 16. В столик помощника машиниста вмонтирован калорифер с электродвигателем 14.
В кузове тепловоза расположены электровентилятор 6 дизельного помещения, аккумуляторная батарея //, электродвигатели топливоподкачиваю-щбго 10 и маслопрокачивающего 9 насосов.
На крыше тепловоза в переднем) части находится головной прожектор 3, на торцах (спереди и сзади) — передние и задние буферные фонари


Рис. 51. Расположение электроаппаратов в высоковольтной камере: а—правая стенка; б—передняя стенка; в — левая стенка; е — задняя стенка; /, 13— измерители электроманометров; 2—контактные зажимы; 3, 7, 34, 35—реле управления; 4 — реле обратного тока; 5, 6 — реле перехода; 8, 9, 29— резисторы ослабления возбуждения; 10— панель резисторов реле времени; // — резистор в цепи возбуждения генератора; 12 — электропиевматическнй вентиль песочниц; 14 — предохранитель; 15 — реле времени; 16 — резисторы в цепи прожектора; 17, 19— панели с предохранителями; 18 — отключатели тяговых электродвигателей; 20—панель с тумблерами; 21, 22 — резисторы в цепи тахогенераторов Т1 и Т2; 23 — добавочный резистор в цепи вольтметра; 24, 25, 36—шунты; 26 — резистор в цепи реле заземлення; 27 — резистор в цепи плавного пуска; 28—панель резисторов СВ и СЗБ; 30 — блок реле боксоваиия; 31 — регулятор напряжения; 32 — выключатель реле заземления; 33 — реле заземления; 37 — панель с выпрямителями; 38 — реверсор; 39—41 — контакторы поездные ПІ, П2, ПЗ; 42—45 — контакторы КВ, ВВ, КПМ, Б; 46—51 — контакторы ослаблення возбуждения; 52, 53 — контакторы Д1, Д2; 54 — выключатель батареи;
55 — шунт 6000А

Рис. 52. Расположение электрооборудования: /, 7—передние и задние буферные фонари; 2 — выключатель ослабления возбуждения; 3— головной прожектор; 4 — высоковольтная камера; 5 — тяговый генератор; 6 — электоовеитнлятоп дизельного помещения; 8 — тяговые электродвигатели; 9—маслопоокачивающий насос; 10—топливоподкачивающий насос; // — аккумуляторная батарея; 12 — тахометоический агрегат; 13 — двухмашинный агрегат; 14 — электродвигатель вентилятора калорифера; 15—контроллер машиниста; 16—скоростемер; 17—приборная
панель пульта управления
/ и 7. Тяговые электродвигатели 8 установлены на передней и задней тележках тепловоза.










