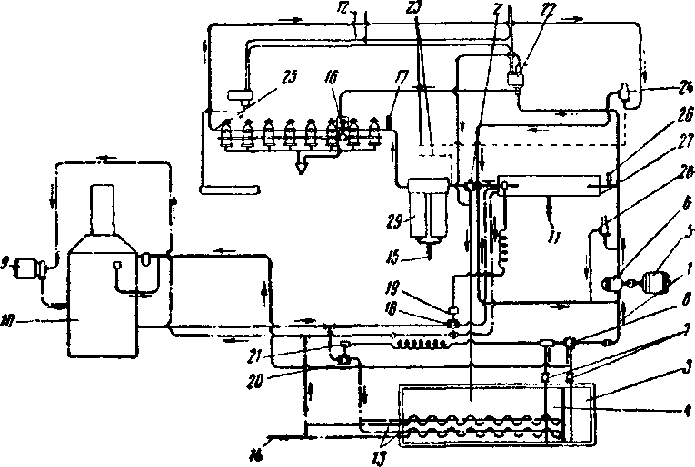
§ 3. Топливный трубопровод
Нефтяной бак тепловоза состоит из двух отсеков (фиг. 108): отсека 4 и отсека 3. Ёмкость первого отсека составляет 2 840 л, ёмкость второго— 190 л. Таким образом, полная ёмкость обоих отсеков 3 030 л. Топливо по трубе 1 засасывается вспомогательным шестерёнчатым насосом 6, приводимым в действие мотором 5, и нагнетается через трубчатый подогреватель 27 и фильтр 29 в коллектор топливных насосов 25, от которого нефть проходит к каждому насосу. Непосредственно за вспомогательным топливным насосом расположен отливной клапан 28, отрегулированный на 3,2 кг/см2, перепускающий избыток топлива во всасывающий трубопровод. На линии после топливных насосов также установлен редукционный клапан 24, отрегулированный на 1,8 кг/см2, отливающий нефть во всасывающую магистраль вспомогательного насоса. Ответвления трубопровода 23 до фильтра и перед редукционным клапаном идут к манометрам; разность показаний последних даёт сопротивление фильтра, т. е. указывает, насколько фильтр загрязнён.
Параллельно нагнетательной линии, идущей на подогреватель 27, проходит трубопровод, подведённый к электромагнитному клапану выключения дизеля 22, описанному выше (фиг. 102); от него одна линия
идёт к выключающему цилиндру 16, а другая отведена в сливной" трубопровод. Просочившееся топливо из цилиндра выключения1 дизеля и топливных насосов сливается в бак.
На трубопроводе установлены два клапана 7 экстренного выключения топлива, тяги от которых находятся в кабине машиниста и сбоку тепловоза. Трёхходовой кран 8 позволяет производить запуск дизеля на топливе из отсека 3 и затем переводить его на топливо из отсека 4 в том случае, когда используются два сорта топлива. При постановке крана 8 в такое положение, чтобы он сообщал отсек 4 со всасывающим трубопроводом вспомогательного насоса, а крана 2 так, чтобы топливо из нагнетательной линии сливалось в бак, топливо будет циркулировать по замкнутой системе, нагреваясь в подогрева-

Фиг. 108, Схема топливного трубопровода
телях 13 и 27. Подогрев топлива осуществляется от котла 10, горячая вода из которого идёт в змеевики 13 основного топливного бака и во вторичный подогреватель 27. Температура топлива в баке 4 поддерживается равной 27° посредством автоматического термостатного устройства 21, перекрывающего проход горячей воды в змеевики 13 при помощи вентиля 20. Температура топлива по выходе из подогревателя 27 также автоматически устанавливается равной 60° благодаря термостатному устройству 19 и вентилю 18. Циркуляция воды обеспечивается центробежным насосом 9 котла. Топливо для последнего-засасывается из отсека 3 шестерёнчатым насосом котла.
Топливный фильтр 29 (сетчатый со скребками) имеет две рабочие полости, которые могут работать попеременно, при необходимости очистки и промывки какой-нибудь из половин. Нормально фильтрующие элементы прочищаются поворотом рукояток, находящихся на крышках фильтров, без разборки фильтра. Для спуска воды и грязи служит спускной кран 15, который следует изредка открывать
во время работы двигателя. Термометры 77 и 26, поставленные до подогревателя и после фильтра, показывают температуру первичного подогрева и температуру топлива перед топливными насосами. Краны 77 и 14 служат для спуска воды. Провода 12 идут к пусковой кнопке.
Прогрев дизеля при длительной стоянке в холодную, погоду
Трубопровод 7 горячей воды, идущий к вторичному подогревателю (фиг. 109), имеет ответвление 2, подводящее воду в рубашку первого цилиндра (счёт цилиндров от головы тепловоза). Вода проходит весь
Фиг. 109. Схема водяного трубопровода для прогрева топлива и воды в зимних условиях
блок и удаляется через водяной насос и трубу 3 во всасывающий трубопровод водяного насоса котла. Как на подводящей трубе 2, так и на отводящей трубе 3 имеются вентили, которые при нормальной работе дизеля закрыты.
Охлаждение дизеля должно производиться предварительно обработанной водой, освобождённой от примесей. Циркуляция воды в замкнутой системе осуществляется центробежным водяным насосом 7 (фиг. ПО), приводимым во вращение от коленчатого вала (так же, как и масляный насос) при помощи цепи. Вода нагнетается насосом непог средственно в дизель, поступает параллельно во все цилиндры, проходит в крышки дизеля и собирается затем в общую трубу 2, проходящую над крышками.
Далее вода направляется в секции холодильника,?, причём в каждой секции размещено 6 рядов по 28 трубок в ряду. Вода входит парал-










