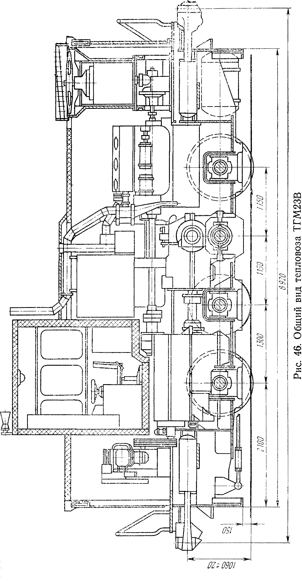
Тепловоз ТГМ23В
Коды ОКП 31 8144 1113;
31 8144 1112; 31 8144 1114
Тепловоз ТГМ23В (рис. 45-47) — маневровый, односекционный мощностью 294 кВт (400 л. с.) предназначен для эксплуатации на промышленных предприятиях.
Техническая характеристика
Ширина колеи, мм....... 1520
Габарит по ГОСТ 9238-83 ..... 02-ВМ
Мощность по дизелю, кВт (л. с.) . . . 294 (400)
Осевая формула........ 0—3—0
Служебная масса, т.......44*; 48**; 54**
Нагрузка от колесной пары на рельсы, кН
(тс).......... 143,9 (14,67)*
157 (16)**; 176,5 (18)***
Сила тяги длительного режима, кН (тс): при маневровом режиме и скорости
6,5 км/ч......... 107,9 (11)
при поездиом режиме и скорости 13 км/ч 53,9 (5,5)
Конструкционная скорость, км/ч:
при маневровом режиме..... 30
при поездном режиме.....60*; 50**; 50***
Минимальный радиус проходимых кривых, м 40
Марка дизеля (обозначение по ГОСТ 4393-82) 1Д12-400БС
(12415/18)
Марка гидропередачи......ГМ23В или
ГП400/20-2
Габаритные размеры, мм:
длина по осям автосцепок .... 8920
ширина.......... 3150
высота......... 4070
Диаметр колес, мм....... 1050
Запасы, кг:
топлива......... 1200
песка.......... 250
воды дизеля (в водяном баке) ... 70
масла гидропередачи...... 220
масла дизеля (в масляном баке) . . 90 Масса балласта (включая встроенный в
конструкцию), кг...... 8800*; 12000**;
18000***
* ТГМ2В-44. ** ТГМ2В-48. *** ТГМ2В-54.

Рис. 45. Тепловоз ТГМ23В
Тепловоз ТГМ23В может выпускаться служебной массой 44, 48 и 54 т, а также изготовляться ;.ія поставок на экспорт в страны с умеренным, і ионическим и влажным тропическим климатами ■■ли колеи от 1435 до 1676 мм (ТГМ23ВЭ и 1 I М23ВЭТ).
На тепловозе применен дизель марки 1Д12-400БС и гидродинамическая передача с одним гидротрансформатором и двумя гидромуфтами или двухтрансформаторная гидропередача.


р-!—і—і-и_—и-1—1_|—_У_|_і_i
5 Ю 15 20 25 30 V, км/ч
Рис. 47. Тяговая характеристика тепловоза ТГМ23В па маневровом режиме: / — с гидр.'.передачей, имеющей гидротрансформатор и две муфты; 2 — с двухтрансформаториой передачей
Привод колесных пар тепловоза — групповой через реверс-режимный редуктор, отбойный вал и спарниковый механизм.
В кабине установлены два диагонально расположенные пульта управления, тепловозы могут поставляться в исполнении для управления машинистом без помощника, имеется система контроля бдительности.
В холодильной установке тепловоза осуществляется охлаждение воды дизеля, масла дизеля и гидропередачи охлаждаются в теплообменниках. Вентилятор холодильника тепловоза имеет отключаемый нерегулируемый привод через гидродинамическую муфту.
Колесные пары установлены в разъемных челюстных внутренних буксах с коническими роликоподшипниками.
Рессорное подвешивание — сбалансированное, одноступенчатое с применением листовых рессор.
Тормозной компрессор типа ПК35М имеет привод от двигателя через отключаемую гидродинамическую муфту.
Кабина тепловоза имеет улучшенную шумо- п теплоизоляцию.
Электрическое оборудование тепловоза рассчитано на напряжение 24 В постоянного тока.
Год начала выпуска — 1982.
Технические условия:
ТГМ23В — ТУ 24.04.500-81;
ТГМ23ВЭ — ТУ 24.04.ЭД 1.500-85;
ТГМ23ВЭТ — ТУ 24.04.ЭД2.500-85. Изготовитель — Муромский тепловозостроительный завод им. Ф. Э. Дзержинского










