СЦБИСТ - железнодорожный форум, блоги, фотогалерея, социальная сеть

Войти через ВКонтакте и др.!

Закладки Дневники Сообщество Комментарии к фото Сообщения за день


 

1.2.1.  Конструкции многоэтажных зданий

Многоэтажные здания по конструктивному признаку можно раз­делить на: каркасные, бескаркасные, каркасно-панельные.

По способу восприятия преимущественно горизонтальных на­грузок каркасные здания принято делить на следующие подгруппы: рамные системы; связевые системы с железобетонными диаф­рагмами, ядрами жесткости или металлическими связями; рамно- связевые системы.

Кроме того, железобетонные каркасные здания по конструктив­ному признаку, наличию или отсутствию ригелей в перекрытиях, подразделяют на каркасно-балочные (ригельные) и каркасно- безбалочные. В каркасно-балочных зданиях усилия от вертикальных нагрузок и воздействий воспринимаются плитами покрытия и пе­рекрытий и передаются на колонны через ригели. В каркасно- безбалочных зданиях ригели отсутствуют, рамы образуются путем же­сткого соединения надколонной плиты или капители с колонной. Такие решения применяются для, производственных зданий специального на­значения, например холодильников.

Бескаркасные здания — здания с несущими стенами, кирпичными или железобетонными (панельные здания) — строят для произ­водственных, административных и административно-бытовых под­разделений различных хозяйств и служб железных дорог. От жилых зданий, где бескаркасные системы до 90-х гг. 20 в. были основными, они отличаются высотой этажей - 4,2...6,0 м. На железных дорогах эксплуатируется также большое число бескаркасных зданий с несу­щими деревянными конструкциями покрытия и перекрытий — бал­ками, фермами, опирающимися на кирпичные стены.

В каркасно-панельных зданиях, наряду с несущими стенами, мо­жет использоваться ригельный или безригельный каркас.

Связевые каркасы характеризуются шарнирными узлами со­пряжения ригелей с колоннами. В рамных системах жесткость карка­са обеспечивается жестким сопряжением ригелей с колоннами. В рамно-связевых системах часть узлов может быть жесткими, часть — шарнирными; горизонтальная жесткость обеспечивается диафрагма­ми и ядрами жесткости или вертикальными связями. На рис. 1.9 представлено многоэтажное здание с несущим железобетонным кар­касом.

Рис. 1.9. Многоэтажное производственное здание с несущим железобетонным

каркасом (УЧГТ — уровень чистого пола)


 


Рис. 1.10. Рамно-связевый каркас двухэтажного здания с увеличенным шагом колонн


 


В конце 20 — начале 21 в. получили распространение рамно- связевые каркасы двухэтажных производственных зданий с ук­рупненной сеткой колонн верхнего этажа. Для прочности и ус­тойчивости каркасов в поперечном направлении используют по­перечные рамы с жесткими и шарнирными узлами сопряжения риге­лей с колоннами; продольная устойчивость каркаса обеспе­чивается постановкой стальных вертикальных связей по колоннам (рис. 1.10).

1.2.2.  Инженерные сооружения железных дорог и промышленных предприятий

На сети железных дорог и на промышленных предприятиях же­лезнодорожного транспорта эксплуатируется значительное число ин­женерных сооружений:

пассажирские платформы с навесом и без навеса; сооружения систем водоснабжения и канализации; транспортерные галереи подачи угля в здания котельных; дымовые трубы;

открытые крановые эстакады; а также пешеходные эстакады и заглубленные в грунт переходы; силосы для хранения песка и другие сооружения; опоры контактной сети электрифицированных железных дорог, про­леты которых на станциях достигают значительных размеров и др.

Пассажирские платформы сооружаются на станциях и остано­вочных пунктах. По расположению относительно пассажирского зда­ния платформы разделяют на примыкающие к нему — основные и расположенные между перронными или просто приемо­отправочными путями — промежуточные. В зависимости от распо­ложения путей различают односторонние платформы, когда пути расположены с одной стороны, и двусторонние (островные) — при расположении путей с двух сторон.

В ряде случаев на основных платформах размещают вспомога­тельные вокзальные сооружения: помещения для грузового багажа, перронные санитарные узлы, торговые павильоны и киоски и др. Для защиты пассажиров от атмосферных осадков, а в южных районах от солнца над платформами устраивают навесы.

Платформы бывают высокие и низкие (1100 или 200 мм от верха головки рельса соответственно). Высокие платформы со­оружают на пассажирских станциях, а также раздельных и оста­новочных пунктах электрифицированных участков с интенсивным пригородным движением. Длину пассажирских платформ назначают исходя из наибольшей длины пассажирских составов. Ширина пас­сажирских платформ зависит от интенсивности и характера пассажи­ропотоков, числа и расположения выходов с платформ, размеров раз­мещаемых на них устройств (павильонов, лестниц и т.д.). При нали­чии на платформах павильонов, входов в тоннели и других сооруже­ний расстояние между крайней гранью этих сооружений и бортом платформы должно составлять не менее 2 м. Низкие платформы (рис. 1.11) могут сооружаться двух типов:

Рис. 1.11. Низкие пассажирские платформы: а — боковые и промежуточная; б — расположена на насыпи высотой до 1,5 м; в — на насыпи более 1,5 м; У — бортовая железобетонная стенка; 2 — стойка;

3   — плита; 4 — засыпка


 

-с бортовыми железобетонными стенками и засыпкой между платформами; боковые и промежуточные на так называемых нуле­вых местах и на насыпях высотой до 1,5 м;

-из сборных железобетонных рам и предварительно напряжен­ных плит (по типу высоких пассажирских платформ); на насыпях вы­сотой более 1,5 м и в выемках.

Высокие пассажирские платформы (рис. 1.12) устраиваются на площадках в выемках или насыпях до 2 м. Платформы сооружаются из сборных железобетонных элементов в двух конструктивных вари­антах: двухстоечные и одностоечные. Двухстоечные платформы мо­гут иметь стойки, опирающиеся на фундаментные башмаки и сваи- стойки (забивные или устанавливаемые в пробуренную скважину). Одностоечные платформы имеют Т-образные стойки, опирающиеся на фундаментные башмаки Для безопасности персонала, произво­дящего осмотр и ремонт ходовых частей стоящих у платформ ваго­нов, а также пассажиров, случайно оказавшихся на путях, высокие платформы устраивают с консольным выносом не менее 50 см в сто­рону пути от бортовой стенки или стоек. Покрытие платформ ас- фал ьтобето н ное.

На всем протяжении платформы должны быть освещены, для чего на них устанавливают осветительные опоры.

К сооружениям систем водоснабжения и канализации относятся насосные станции, здания для очистки воды и водонапорные башни.

Насосные станции предназначены для подъема воды к очистным сооружениям или потребителю. Станции, забирающие воду из ис­точника водоснабжения и подающие ее на очистку либо не­посредственно в водонапорную башню или сеть, — насосные стан­ции первого подъема. Для подачи воды после очистки в сеть служат насосные станции второго подъема.

В зависимости от расположения оборудования относительно по­верхности земли насосные станции могут быть наземными, полуза- глубленными и заглубленными (рис. 1.13).

Насосная станция состоит из машинного зала, хлораторной и бытовых помещений (при автоматическом управлении насосами необходимость в бытовых помещениях отпадает). В машинном зале размещаются насосы, двигатели, трубопроводы, задвижки, конт­рольно-измерительная аппаратура. Для монтажа оборудования в


Рис. 1.12. Высокие пассажирские платформы: а и б — двухстоечные; виг — одностоечные; УП — уровень платформы; УГР — уровень головкг рельса


 


Рис. 1.13. Здания и соор> жения водоснабжения: а — полузаглубленная насосная станция; б — заглубленная насосная станция; в водонапорная башня, У хлоратирная, 2 бункер для угля; 3 паровой котел; 4 — нагнетательная линия; 5 — паровой насос; 6 — всасывающая линия;

7 — кран-балка; 8 — защитная стенка; 9 — электронасос


 

машинном зале устанавливается монорельс с тельфером или кран- балка Машинный зал оборудуется вытяжной вентиляцией При от­сутствии поблизости ремонтной базы при станции предусматривается небольшая мастерская площадью 10... 15 м2 с кладовой для хранения смазочных и обтирочных материалов.

На заглубленных насосных станциях строят цилиндрическую или коническую шахту и наземный павильон. Машинный зал в этом слу­чае размещается на дне шахты, выполняемой из гидротехнического бетона или железобетона с последующей гидроизоляцией от напор­ных вод.

Иногда насосные станции совмещают с другими зданиями и со­оружениями — котельными, компрессорными, электростанциями, водонапорными башнями, очистными установками.

Здание очистки воды предназначено для размещения в нем обо­рудования и устройств для осветления (отстаивания, коагуляции, фильтрации), обеззараживания (хлорирования), а иногда и умягчения воды

Водонапорные башни (рис. 1.13, в) устраивают для создания за­паса воды и необходимого напора в разводящей сети. Водонапорные башни высотой 10...40 м состоят из несущего ствола, шатра и одного- двух резервуаров (баков) для воды объемом от 40 до 500 м3 и более, изготовленных из стали или железобетона. Шатры башен защищают воду от замерзания, а также служат для осмотра и ремонта баков. Стенки шатра делают из обычных стеновых материалов. В местах с благоприятными климатическими условиями или при наличии цир­куляции воды в баках сооружают бесшатровые башни.

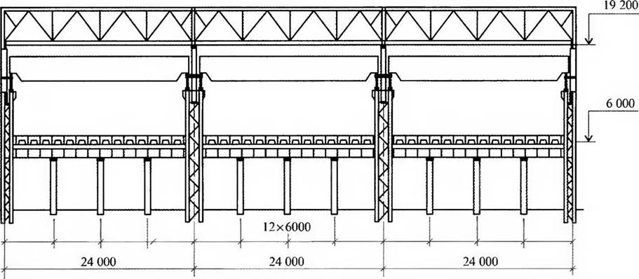
Транспортерные галереи предназначены для размещения конвей­еров, с помощью которых производится перемещение сыпучих ма­териалов Галереи представляют собой горизонтальные или наклон­ные сооружения с продольным углом наклона а, не превышающим 24 градуса (рис. 1.14). В зависимости от условий эксплуатации и тре­буемого температурного режима галереи устраивают отапливаемыми или неотапливаемыми.

Рис. 1.14. Схема транспортерной галереи


 

Галереи состоят из опор и пролетных строений. В состав про­летных строений входят несущие конструкции перекрытия и шат­ровая часть. Для несущих конструкций пролетных строений чаще всего применяются металлические фермы с параллельными поясами. В галереях, построенных до 70-х гг. 20 в., применялись несущие кон­струкции из прокатных и сварных двутавров с расположением кон­вейеров и элементов перекрытия на уровне верхних поясов.

При использовании в качестве несущих конструкций пролетных строений ферм применялись две схемы расположения ограждающих конструкций: с фермами, находящимися снаружи или внутри отапли­ваемого пространства. Недостаток первого варианта — опасность снижения эксплуатационной надежности металлоконструкций в ус­ловиях низких температур. Во втором случае конструкции подверга­ются воздействию влаги, способствующей коррозионному износу стали. Повышению влажности способствует попадание воды, кото­рой смывают с пола просыпанный с конвейера материал. Кроме того, в результате контакта нижнего пояса с наружным воздухом по эле­ментам ферм образуются «мостики холода», что приводит к образо­ванию конденсата в узлах ферм.

Стальные опоры, поддерживающие пролетные строения галерей подразделяются на плоские и пространственные. Пространственные опоры (анкерные) обеспечивают продольную устойчивость сооруже­ния при температурных колебаниях. Остальные металлические опоры выполняют в виде плоских конструкций, обладающих незначитель­ной жесткостью в направлении продольной оси галереи. Опыт экс­плуатации галерей свидетельствует о том, что они относятся к наибо­лее повреждаемому классу сооружений. Повышенная повреждае­мость обусловлена совместным воздействием ряда неблагоприятных факторов, включая динамические нагрузки и непосредственное влия­ние климатических температур.

Открытая крановая эстакада представляет собой инженерное со­оружение, состоящее из колонн и горизонтального пролетного стро­ения с установленными на них мостовыми кранами. Такие эстакады используют для механизации погрузочно-разгрузочных работ на складах промышленных предприятий железных дорог для материа­лов и изделий, хранение которых допускается на открытом воздухе (рис. 1.15). Габаритная схема эстакады определяется технологичес­ким процессом и характеристиками мостового крана — грузоподъ­емностью, пролетом, режимом работы, высотой подъема груза и др.


 

Рис. 1.15. Открытая крановая эстакада


 

Открытые крановые эстакады представляют собой ряды колонн, связанных между собой подкрановыми конструкциями и вертикаль­ными связями, обеспечивающими жесткость в продольном направле­нии и воспринимающими силы продольного торможения кранов. В поперечном направлении жесткость обеспечивается свободно стоя­щими, защемленными в фундаментах колоннами или жесткими риге­лями-распорками, соединяющими надкрановые части колонн. Ко­лонны открытых крановых эстакад устраивают сборными железобе­тонными или стальными при грузоподъемности крана более 32 т или высоте более 13 м. Подкрановые конструкции эстакад включают в себя подкрановые балки, тормозные конструкции, вертикальные вспомогательные фермы — аналогичные конструкциям одноэтажных производственных зданий.

Эксплуатационная надежность открытых крановых эстакад опре­деляется, как правило, деформативностью оснований фундаментов колонн, особенно при отсутствии распорки по верху колонн.