Система охлаждения
дизель имеет водяное охлаждение с принудительной циркуляцией в открытой системе с расширительным баком.
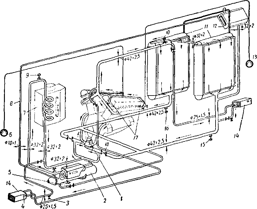
Основными частями системы охлаждения являются: водяной насос 1 (рис. 40), радиаторы 11, расширительный бак 12, трубопроводы и манометрические термометры. К системе охлаждения дизеля присоединяются котел-подогреватель 2 и калориферы 14 отопления кабин машинистов. Вместимость системы составляет 185 л, в том числе радиаторов — 60 л, расширительного бака — 30 л, котла-подогревателя — 30 л, системы дизель — 35 л, калориферов и трубопроводов — 30 л. Вода, применяемая для заполнения системы охлаждения, должна быть пресной, прокипяченной и не содержать посторонних примесей. Для уменьшения коррозии детали дизеля в нее перед заправкой системы добавляется специальный раствор.
Циркуляция воды в системе охлаждения осуществляется центробежным насосом, установленным на нижнем картере дизеля со стороны передачи.
От насоса вода по двум нагнетательным патрубкам и двум подводящим трубам направляется в нижние части рубашек охлаждения обоих блоков цилиндров. Охладив гильзы, вода поднимается в верхнюю часть рубашек и через соединительные трубки поступает в рубашки головок блоков, в которых омывает стенки камер сгорания и гнезда форсунок. Из выходных патрубков головок блоков вода поступает в водяные рубашки охлаждаемых выпускных коллекторов, откуда по трубопроводу направляется в радиаторы холодильника. Отдав тепло радиаторам, она снова возвращается к водяному насосу. Чтобы не образовались паровые пробки, нарушающие нормальную работу системы, предусмотрены пароотводные трубки 17, по которым пар отводится в водяные трубы. Верхние коллекторы водяных радиаторов имеют дренажные трубки для отвода скапливающегося в них воздуха в расширительный бак.

Рис. 40. Схема системы охлаждения:
1 — водяной насос; 2 — котел-подогреватель; 3, 5 —вентили; 4 — воздухоспускной кран; 6, 13 — манометрические термометры; 7 —масляный бак; 8 — пароотводная трубка; 9, 10 — воздухоспускные краны; 11 — водяной радиатор; 12 — расширительный бак; 14 — калорифер; 15, 16 — спускные вентили; 17 — пароотводные трубки, двигателя; 18 — вентиль
Контроль за охлаждением дизеля осуществляется замером температуры воды, выходящей из рубашек головок блоков. Для этого на каждом угольнике выхода воды имеются штуцеры, в которых укреплены приемники дистанционных манометрических термометров.
Термометр состоит из приемника, капиллярного трубопровода и указателя, образующих замкнутую систему. Приемник представляет собой небольшую полую трубку, закрытую с одного конца и частично наполненную кипящей при низкой температуре жидкостью — хлорэтилом (температура кипения 24° С при давлении 700 мм рт.ст.). С другого конца внутренняя полость трубки приемника соединяется капиллярным трубопроводом с внутренней полостью бурдоновской пружины указателя, заполненной смесью, состоящей из 75% глицерина, 20% этиленового спирта и 5% воды. Для предохранения от повреждений и для устойчивости капиллярный трубопровод заключен в металлическую оплетку и дополнительно в защитную спираль.
Капиллярный трубопровод прокладывается под полом машинного отделения и кабины машиниста и предохраняется от повреждения щитком. Изгибать капиллярные трубопроводы радиусом менее 50 мм, а также перекручивать их не разрешается. Капиллярный трубопровод к указателю прибора, находящемуся в кабине машиниста № 1, имеет длину 9 л, а к указателю, расположенному в кабине № 2, — б м.
Указатель представляет собой манометр с бурдоновской пружиной, циферблат которого отградуирован в градусах Цельсия. Указатель, имеющий круглый корпус, крепится к щитку пульта управления. Приемник прикрепляется к штуцеру на выходном колене патрубка водяной рубашки головки блока при помощи накидной гайки с резьбой.
При периодических осмотрах тепловоза необходимо производить проверку показаний дистанционных термометров на месте их установки. Для проверки целесообразно использовать переносную электроплитку с водяной ванной и контрольным ртутным термометром со шкалой до 100°С. Помещая приемник в переносную ванну, наблюдают за показаниями указателя прибора и сравнивают с показаниями контрольного термометра. При расхождении показаний указателя и контрольного термометра свыше 10°С дистанционный термометр должен быть заменен новым.
Схема трубопроводов, размещение вентилей и спускных кранов в системе водяного охлаждения дизеля предусмотрены так, чтобы заполнение системы водой и слив воды происходили без образования воздушных пробок и водяных мешков, которые нарушают нормальную работу системы и вызывают снижение производительности водяного насоса, что может привести к перегреву дизеля.
Заполнять водой систему охлаждения через горловину расширительного бака необходимо при открытых воздухоспускных кранах 9 и 10 (рис. 40), расположенных в наиболее высоких участках трубопроводов. Все вентили и спускные краны должны быть такжеоткрыты. После частичного слива воды из системы вентили 15 и 16 закрывают.
Сливать воду из системы охлаждения следует при полностью открытых имеющихся в ней кранах и вентилях, что устраняет возможность образования водяных пробок и ускоряет опоражнивание системы. Необходимо обращать особое внимание на то, чтобы вода из рубашек охлаждения выхлопных коллекторов и водяного насоса была полностью удалена, что особенно важно при низких температурах для избежания повреждений при замерзании воды.
Водяной насос состоит из следующих основных частей: корпуса 1 (рис. 41, а и б), отлитого заодно с отводящими патрубками 6, крышки 2 с приемными патрубками 5, крыльчатки 3, валика 4 и двух шарикоподшипников 10.
В расточке корпуса запрессована бронзовая втулка 8, отделяющая водяную полость насоса от привода. Крыльчатка 3 приклепана к фланцу валика 4, опорами которого являются два шарикоподшипника 10. Верхняя часть валика 4 имеет хвостовик, на котором укреплена муфта 11 для соединения его с нижним вертикальным валиком передачи дизеля.
В корпусе насоса установлены сальники 7 и 9 с нажимными пружинами 14. Сальник 7 уплотняет валик от просачивания воды к шарикоподшипникам со стороны крыльчатки 3, а сальник 9— от просачивания масла в водяную камеру насоса со стороны шарикоподшипников. По мере выработки сальников уплотнение их создается нажатием пружин: верхней, уплотняющей сальник 9, и нижней, уплотняющей сальник 7.
В нижней части крышки насоса имеется прилив, в который ввернут кран для спуска воды. Он состоит из корпуса 12, клапана 13 и нажимной пружины 14. Для открытия крана необходимо с помощью кольца 15 стержень клапана потянуть к себе и преодолеть усилие нажимной пружины, удерживающей клапан в своем гнезде.
Калориферы служат для обогрева кабин машиниста. Калорифер состоит из радиатора и осевого вентилятора, посаженного на валу электродвигателя.
При работающем дизеле в радиаторе калорифера циркулирует вода, которая отдает свое тепло воздуху, прогоняемому между ребристыми трубками радиатора вентилятором. Нагретый воздух направляется на правую стенку кабины машиниста, обогревая в первую очередь трубопроводы и краны управления воздушного тормоза и песочниц. В летнее время циркуляция воды через радиатор должна быть отключена посредством предусмотренных для этой цели кранов.
Соединения трубопроводов системы охлаждения в большинстве мест выполнены дюритовыми муфтами, плотно обжимаемыми стяжными хомутами. Особое внимание следует обращать на соединения всасывающей линии между радиаторами холодильника и водяным наі.осом. Расстояние между двумя смежными трубами, соединяемыми дюритовыми муфтами, должно быть не более половины диаметра трубы и не менее 2 мм. Длина дюритовой муфты должна быть такой, чтобы расстояние от ее конца до обреза трубы было примерно равно 40 мм. Постановка муфт на белилах и сурике не разрешается.
Трубопроводы системы охлаждения должны иметь антикоррозийное покрытие внутри и снаружи. Перед нанесением покрытия трубы травят. Внутреннюю поверхность труб покрывают олифой, а наружную — маслостойкой краской. Постановка в систему охлаждения труб без антикоррозийного покрытия не допускается.










