12.8. Сигнализирующие и защитные устройства
Недостаточное давление в масляной системе дизеля. Если в момент пуска или при работе дизеля не обеспечивается давление масла в конце верхнего коллектора дизеля 0,5—0,6 кгс/см2, то контакт реле РДМ1 (239, 227) не замыкается или размыкает цепи питания реле РУ9 и тягового электромагнита ЭТ-54 объединенного регулятора, останавливая дизель.
При переходе на высшие позиции контроллера и достижении давления масла в верхнем коллекторе дизеля 1,1—1,2 кгс/см2 включается реле РДМ2. Оно обеспечивает в тяговом режиме питание катушки контактора КВ наряду с замкнутыми до 12-й позиции контроллера контактами реле РУ4. Если на позициях контроллера с 12-й по 15-ю не обеспечивается вышеуказанное давление масла, то реле РДМ2 отключает контактор КВ. Главные контакты КВ размыкаются и питание обмотки возбуждения тягового генератора осуществляется от возбудителя через резистор СВР, при этом уменьшаются ток возбуждения и напряжение генератора.
Одновременно вспомогательный контакт КВ (142, 144) отключает контактор ВВ. После чего напряжение и нагрузка стягового генератора полностью снимаются и загорается сигнальная -лампа «Сброс нагрузки», включаемая вспомогательным контактом ВВ (312, 313).
Перегрев охлаждающей воды или масла. В тяговом режиме предупреждает недопустимый нагрев воды и масла, охлаждающие дизель, термореле воды и масла ТРВ и ТРМ (совмещены в реле КРД-2).
При достижении предельных температур на выходе из дизеля как по воде, так и по маслу контакты ТРВ или ТРМ (121, 122, 123) разрывают цепь питания катушки контактора КВ. Это приводит к отключению контактора В В, снятию возбуждения тягового генератора, нагрузки и включению сигнальной лампы «Сброс нагрузки».
Повышение давления масляных паров в картере дизеля, аварийная остановка дизеля. В этом случае замыкается контакт дифманометра КДМ (217, 216) и питание через замкнутый на 2-й позиции контакт контроллера 3 (267) подается на катушку реле РУ7.
Реле РУ7:
а) замыкающим контактом (220, 223) становится на самопитание непосредственно от автомата «Управление дизелем»;
б) размыкающим контактом (358, 362) прекращает питание катушки реле РУЗ, а следовательно, и электродвигателя топливного насоса ТН;
в) этими же контактами прекращает питание реле РУ9 (207, 239 и т. д.) и тягового электромагнита ЭТ объединенного регулятора дизеля, что приводит к снятию возбуждения генератора, полному прекращению подачи топлива в топливные насосы и остановке дизеля.
При возникновении аварийной ситуации на стоянке или в поездном режиме применяется «Аварийная кнопка» АК- При нажатии кнопки ее контакт (1261, 1262) шунтирует замыкающий контакт реле РУ7 и включает его, что приводит к снятию нагрузки и остановке дизеля.
Недостаточное давление воздуха в тормозной магистрали. В цепь питания катушек контакторов возбуждения КВ и ВВ включено реле давления воздуха РД (112, 128), которое контролирует давление воздуха в тормозной магистрали. Если вследствие торможения или других причин давление воздуха в тормозной магистрали меньше 3 кгс/см2, то контакт РД размыкается, разрывая цепь питания катушек КВ и ВВ, и происходит сброс нагрузки. Реле давления воздуха предотвращает также трогание тепловоза при недостаточном (менее 5 кгс/см2) давлении воздуха в тормозной магистрали.
На тепловозе предусмотрен также контроль целости воздухопровода тормозной ммгистрали. При открытии стоп-крана или обрыве воздушной магистрали поезда (независимо от его длины) происходит включение пневмоэлектрического датчика ДДР (контролирует давление воздуха в канале дополнительной разрядки воздухораспределителя). Его замыкающий контакт (1156, 1157, 1162) через размыкающий контакт пневмоэлектрического датчика ДТЦ включает реле РУ12.
Размыкающий контакт реле РУ12 (А95, А86) снимает возбуждение и нагрузку тягового генератора. Замыкающий контакт реле РУ12 (1156, 1158) включает сигнальную лампу «Разрядка тормозной магистрали» на пульте машиниста и ставит катушку реле РУ12 на самоподпитку через разделительный диод (1159, 1160) и замкнутый контакт датчика ДТЦ.
После приведения в действие тормоза машинистом включается датчик ДТЦ (контролирует давление воздуха в канале тормозных цилиндров воздухораспределителя). Его размыкающий кош акт отключает реле РУ12, гаснет сигнальная лампа «Разрядка тормозной магистрали», указывая на правильность действий машиниста.
Защита обслуживающего персонала от высокого напряжения. В случае нарушения правил электротехнической безопасности пли слу чайном открытии дверей высоковольтных камер без снятия напряжения іяго-вого генератора контакты дверных блокировок БД1—БД4 размыкаются, выключая контакторы ВВ и КВ. Напряжение тягового генератора снимается и включается сигнальная лампа «Сброс нагрузки».
Пробой на корпус в цепях высокого напряжения. Для защиты и сигнализации при пробое изоляции силовой цепи на корпус предусмотрено реле заземления РЗ. Катушка РЗ включена между «—» силовой цепи и корпусом тепловоза через резистор СРЗ, который уменьшает величину емкостных токов и исключает ложное срабатывание реле.
Реле срабатывает при нарушении изоляции силовой цепи, круговом огне на коллекторах тяговых электрических машин и коротких замыканиях в них, обычно сопровождающихся замыканием токоведущих частей силовой цепи на корпус. При срабатывании реле обеспечивается безопасная работа обслуживающего персонала, так как нахождение корпуса тепловоза в результате пробоя изоляции под напряжением создает угрозу поражения людей электрическим током.
После включения реле блокируется во включенном положении механической защелкой. Размыкающий контакт реле (110, 111, 142) в цепи катушек контакторов ВВ и КВ снимает возбуждение и нагрузку с тягового генератора. За,лыкающий контакт реле (207, 206) включает сигнальную лампу «Реле заземления» на пульте управления машиниста.
Комплексное противобоксовочное устройство. Боксование одной или нескольких колесных пар тепловоза характеризуется резким увеличением их частоты вращения, увеличением напряжения и уменьшением тока, тяговых электродвигателей этих колесных пар и увеличением напряжения тягового генератора. Соответственно уменьшатся ток и нагрузка генератора. В этом случае система автоматического регулирования возбуждения стремится поддерживать мощность генератора в пределах гиперболической части внешней характеристики — уменьшение тока будет компенсироваться увеличением напряжения. Повышение напряжения генератора, а значит и тяговых двигателей вызовет увеличение тока и силы тяги у электродвигателей небоксующих колесных пар, т. е. произойдет перераспределение нагрузки. Таким образом, появляется возможность развития боксования и его распространение на небоксующие колесные пары.
Если напряжение тягового генератора оставить неизменным в момент начала боксования, то сила тяги (прямо пропорциональная току) электродвигателей небоксующих колесных пар останется также неизменной, так как ток в них практически не изменится. У электродвигателей боксующих колесных пар, напротив, сила тяги резко снизится за счет уменьшения тока. Поэтому в первом случае сцепление колес с рельсами не нарушится, а во втором имеются условия восстановления сцепления и прекращения боксования, т. е. при неизменном напряжении уменьшение нагрузки тягового генератора в момент начала боксования будет практически равным уменьшению ее у тяговых электродвигателей боксующих колесных пар.
Электрическая схема тепловоза предусматривает работу тягового генератора при отсутствии боксования по внешней характеристике, а в случае его возникновения — по характеристикам с неизменным или малоизмеияющимся напряжением, называемым в этом случае жесткими динамическими характеристиками по напряжению. Для обеспечения таких характеристик применяется схема регулирования возбуждения от сигнала, пропорционального наибольшему току тяговых электродвигателей небоксующих колесных пар. Формируют этот сигнал трансформаторы 77777—4 с выпрямительными мостами на выходе. Через каждый трансформатор проходит Ток пары тяговых электродвигателей, одинаково склонных к боксованию. Такими парами на тепловозе, имеющем бесчелюстные тележки, при движении «Вперед» являются 1 и 2, 1 и 3, а при движении «Назад» — 4 и 6, 5 и 6. Сигналы (токи) от трансформаторов ТПТ поступают на выпрямительные мосты, соединенные последовательно. За счет этого на выходе выпрямительных мостов будет выделяться сигнал, пропорциональный наибольшему из токов тяговых электродвигателей. Очевидно, что в случае боксования это может быть только ток, пропорциональный току тягового электродвигателя небоксующей колесной пары.
Ток выпрямительных мостов подается через селективный узел на управляющую обмотку амплистата. Туда же подается и ток от трансформатора ТПН, пропорциональный напряжению генератора. Так как ток небоксующих колесных пар остается практически неизменным, то и ток в управляющей обмотке не изменится. Следовательно, не изменяются выходной ток амплистата в обмотке возбуждения возбудителя и напряжение тягового генератора. Генератор при боксовании будет иметь жесткие динамические характеристики по напряжению.
Если начавшееся боксование колесной пары не самоликвидировано действием жестких характеристик генератора, то оно прекращается после срабатывания одного из реле боксования РБ1—РБЗ, включенными между 1—4, 2—5, 3—6 тяговыми электродвигателями. Цепи питания катушек реле боксования собираются замыкающими вспомогательными контактами поездных контакторов ПІ—П6. Для реле РБ1: 1ТЭД {1101), замыкающий контакт П1 (1102), катушка РБ1 (1104), резистор СРБ1 (1168), замыкающий контакт П4 (1122) и на 4ТЭД. Для РБ2 и РБЗ включение цепей питания аналогично.
Реле боксования включены непосредственно после якоря (на щеткодержатели) перед обмотками главных и добавочных полюсов каждого
из пары электродвигателей. Уменьшение тока в цепи электродвигате. га боксующей колесной пары уменьшает падение напряжения на обмоіке возбуждения данного электродвигателя. Падение напряжения па обмотке возбуждения электродвигателя небоксующей колесной пары остается прежним. При определенной величине разности потенциалов на зажимах катушки реле ток в катушке становится достаточным для включения реле боксования. Так как чувствительность реле боксования на полном поле возбуждения тяговых электродвигателей оказывается очень большой, в цепь катушек реле включены резисторы СРГ>1 СРЕЗ. Для увеличения чувствительности реле на ослабленном поле замыкающие контакты реле РУ16 {1133, 1134 и т. д.) закорачивают большую часть резисторов СРБ1—СРЕЗ. Реле РУ16 включается замыкающим контактом реле перехода I ступени РП1 (157, 264) вместо с контактором ослабления поля ВШ1.
При срабатывании одного из реле боксования его замыкающий контакт (1036 ... 1044) подает питание на катушки реле РУ5 и РУ17.
Замыкающие контакты реле РУ5 включают реле времени Р1Н (1051, 1047), зуммер боксования (1048, 1049) и сигнальную лампу «Сброс нагрузки» (1053, 1052). Размыкающий контакт РУ17 (1142, 1139) вводит часть резистора ССН в цепь задающей обмотки лмплигтлта, снимая мощность генератора на 50—55%.
Замыкающий с выдержкой времени на размыкание контакт роле РВ4 (1172, 1173) шунтирует часть резистора СОУ, увеличивая ток в управляющей обмотке амплистата, и тем самым снижает мощность до 20—25% номинальной. Другой контакт реле РВ4 (1176, 1055) включает тяговый электромагнит МР5 объединенного регулятора дизеля, принудительно выводящий индуктивный датчик на минимальный упор, после чего мощность генератора снижается до 10—15%). Этим исключается отрицательное воздействие регулятора дизеля на возбуждение генератора при боксовании, так как при снижении мощности регулятор будет стремиться загрузить дизель, выводя индуктивный датчик на максимальный упор и увеличивая ток в регулиро-вочной'обмотке амплистата.
После отключения реле боксования восстановление мощности происходит ступенчато. Сначала при отключении реле РУ17 увеличивается ток в задающей обмотке. Через 1,0—1,5 с отключается реле РВ4, уменьшая ток в управляющей обмотке и включая в работу индуктивный датчик. Затем индуктивный датчик вновь занимает рабочее положение. Такое ступенчатое восстановление мощности совместно с воздействием на регулятор дизеля уменьшает возможность возникновения незатухающих колебаний в системе генератор — электродвигатели и развитие боксования по этой причине.
Замыкающий контакт РУ16 (1292, 1293) исключает возможность перехода на полное поле, а размыкающий контакт РУ17 (1059, 1060) исключает возможность перехода на ослабленное поле при работе реле боксования.
Реле РУ15 служит для формирования наклонных внешних характеристик генератора на первых семи позициях контроллера. Размыкающий контакт реле (1098, 1097) до 7-й позиции контроллера шунти-
рует диод В7 селективного узла. Тем самым сигнал обратной связи, пропорциональный току генератора и поступающий от трансформатора ТПТ в управляемую обмотку амплистата, уменьшается, так как часть его 1А (см. рис. 134), помимо управляющей обмотки и резистора СБТТ, замыкается через резистор СБТН. Поэтому характеристики генератора до 7-й позиции контроллера не имеют вертикальной отсечки по току, а идут более полого и пересекаются с горизонтальной осью при токах, больших, чем существующие раньше. Кроме того, при одном и том же уменьшении тока нагрузки прирост напряжения генератора у наклонных характеристик меньше, чем у характеристик с вертикальной отсечкой по току. Следовательно, уменьшается возможность развития боксования, облегчаются трогание и разгон тепловоза, происходящие при больших токах.
Аварийный режим работы при отключении тягового электродвигателя. Для отключения неисправного тягового электродвигателя соответствующий отключатель ОМ устанавливается в положение «Отключено», выполняя следующие операции в цепях управления (рассматривается на примере первого тягового электродвигателя):
а) разрывает цепь питания катушки поездного контактора Я/ (178, 179);
б) шунтирует размыкающийся вспомогательный контакт поездного контактора П1 (125, 126) в цепи питания контакторов В В и КВ;
в) вводит дополнительно часть резистора СОЗ (431, 432) в цепь питания задающей обмотки амплистата, что снижает мощность генератора.
Поездной контактор П1 своим главным контактом (531, 538) отключает неисправный первый электродвигатель. Вспомогательным замыкающим контактом (128, 127) исключает подачу питания через них на катушки контакторов ВВ и КВ. Вспомогательным замыкающим (1101, 1103) и размыкающим (1103, 1111) контактами переключает катушки реле боксования РБ1 от первого неисправного электродвигателя ко второму исправному, защищая четвертый (оставшийся из пары) исправный электродвигатель при боксовании. Реле РБ1 будет включено между вторым (1102, 1103, 1111, 1112) и четвертым (1104, 1168, 1122) исправными электродвигателями.
Переключения и цепи питания при выходе из строя других тяговых электродвигателей аналогичны.
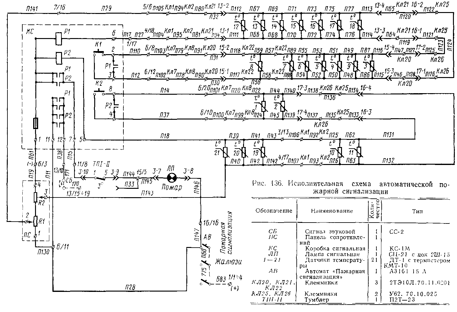
Автоматическая световая и звуковая пожарная сигнализация. Система автоматической пожарной сигнализации служит для автоматической подачи звукового и светового сигналов в случае появления на тепловозе пожара или чрезмерной высокой температуры (рис. 136). Она включает в себя термодатчики 1—21,сигнальную коробку КС,потенциометры Я1 и Я2, тумблер ТП1—// и лампу«Пожар» на пульте управления машиниста, а также использует в качестве звукового сигнала зуммер СБ в кабине машиниста.В коробке КС находятся исполнительные реле Р1 и Р2, кнопки проверки К1 и К2 и предохранитель.
Питание цепей пожарной сигнализации осуществляется включением автомата АВ. Так как срабатывание термодатчика нелинейно зависит от максимально возможных рабочих температур и приложенного напряжения питания, то они разбиты на две цепи. Первая цепь питается напряжением 28 В, снимаемым с потенциометра Р.2. Она состоит из трех датчиков, расположенных в высоковольтных камерах, четырех датчиков, расположенных под крышей дизельного помещения, и рассчитана на включение реле
Р2. Вторая цепь питается напряжением 40 В, снимаемым с потенциометра Р^1. Она состоит из 14 датчиков, расположенных на стенках дизельного помещения, и рассчитана на включение реле Р1.
При повышении температуры в месте установки термодатчика до 105 і 10° С сопротивление его резко уменьшается, что приводит к увеличению тока в цепи и срабатыванию соответствующего исполнительного реле. Например, при срабатывании во второй цепи термодатчика 12 пересоединяются провода ПІП, П112 и напряжение питания величиной 40 В с потенциометра Я1 (П141) подается на реле Р1. Замыкающий контакт реле Р1, шунтируя кнопку проверки К.1, ставит реле на самопитание, а другие контакты включают световую (лампа «Пожар») и звуковую (зуммер СБ) сигнализацию на обеих секциях.
Для определения, на какой именно секции тепловоза создалась угроза пожара, необходимо перевести рукоятку (с самовозвратом) тумблера в положение //. При этом, если сработала пожарная сигнализация ведомой секции, лампа «Пожар» горит, так как питание на нее подается через межтепловозное соединение (ПЗЗ). Работу пожарной сигнализации проверяют нажатием кнопок К.1 или К2, которые своими контактами шунтируют термодатчики, имитируя срабатывание одного из них. Для прекращения действия пожарной сигнализации необходимо кратковременно выключить автомат АВ.
Перед установкой на тепловоз датчики испытывают на срабатывание. Испытание проводят по схеме, приведенной на рис. 137. Цель испытания — распределение датчиков по группам в зависимости от времени срабатывания. При испытании датчики подогреваются в течение 2,5—3 мин в термостате при температуре +40° С, после этого на датчик подается питание напряжением 90 В и по секундомеру замеряется время, через которое он сработает и включит реле Р в схеме испытания. Датчики, сработавшие за время 5—20 с, относятся к первой группе, датчики, сработавшие за время 21—130 с, относятся ко второй группе. Допускается установка датчиков первой группы в цепь, состоящую из датчиков второй группы.










