На электропоездах ЭР9М выпрямительная установка типа УВП-3 расположена под кузовом моторного вагона. Такое расположение имеет ряд преимуществ
по сравнению с кассетным расположением в тамбурных шкафах: удобнее доступ к вентилям во время текущего обслуживания и ремонта; сокращается трудоемкость при монтаже и в обслуживании; упрощается схема самой выпрямительной установки; повышается пожарная безопасность конструкции.
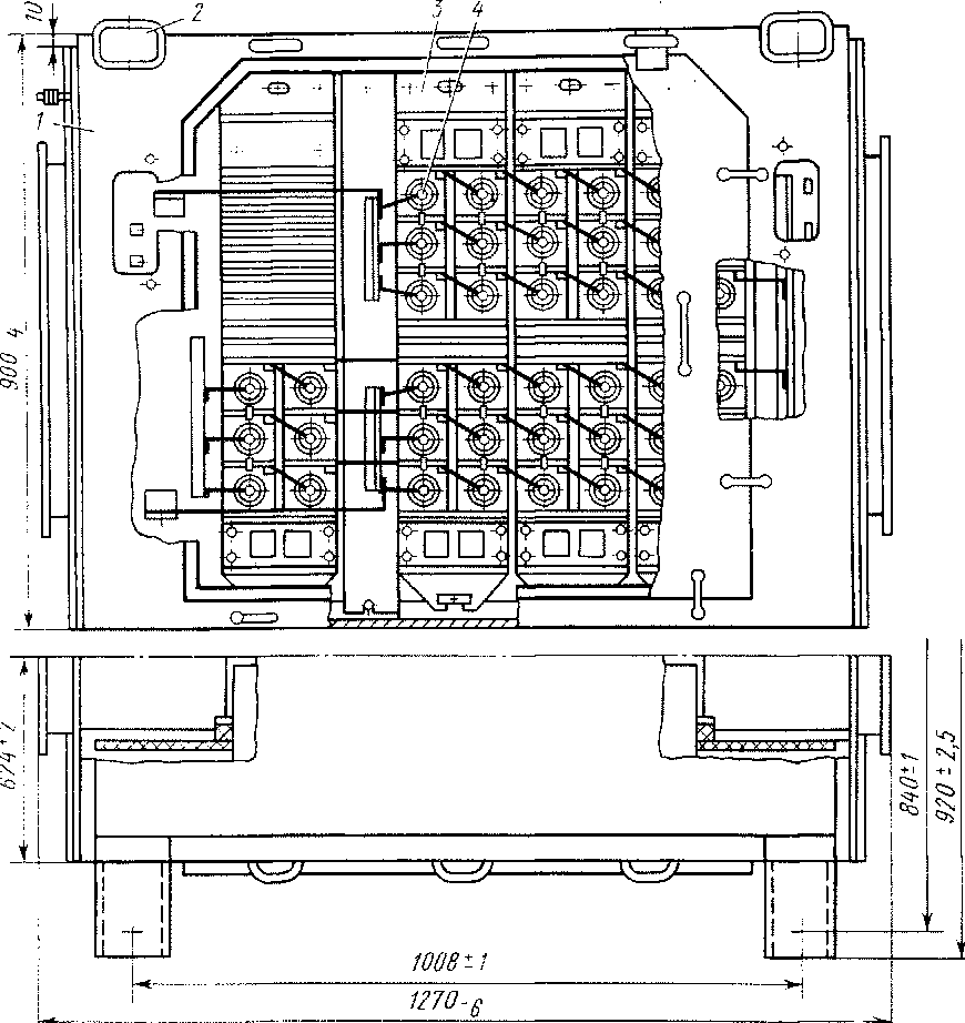
Выпрямительная установка УВП-3 укомплектована 84 вентилями ВЛ-200 и расположена в пыленепроницаемой камере под рамой моторного вагона. Камера имеет две съемные (с внутренней и наружной стороны) крышки / (рис. 128). В камере расположены шесть блоков, состоящих из 12 вентилей, и два блока, состоящих из 6 вентилей (для расщепленных частей плеч), расположенных в горизонтальных рядах. Вентили ввернуты в алюминиевые охладители. Охладители друг от друга изолированы гетинаксовыми прокладками. Гибкие выводы вентилей и ушки токоотводящих пластин находятся снаружи и легко доступны для осмотра и ремонта. Вводные клеммы для подсоединения силовых проводов расположены на четырех гетинаксовых панелях по краям установки. Блоки с вентилями подвешены в камере на направляющих пальцах и укреплены четырьмя болтами. Блоки внутри камеры образуют канал для охлаждающего воздуха.

Рис. 128. Выпрямительная установка УВП-3:
/ — крышка; 2 — каркас; 3 — блок охладителей; 4 — вентиль ВЛ-200

Рис. 129. Схема вентиляции трансформаторно-выпрямительного блока моторного вагона ЭР9М:
/ — камера; 2— фильтры; 3 — вентилятор; 4 — расщепитель фаз; 5 — вентиляционный канал; 6 — выпрямительная установка УВП-3; 7 — сглаживающий реактор; в—охладитель масла трансформатора
На электропоезде ЭР9М применена система принудительного воздушного охлаждения трансформаторно-выпрямительного блока и сглаживающего реактора. Для охлаждения всей системы (рис. 129) на валу расщепителя фаз установлен вентилятор производительностью 5480 м7ч. Воздух для охлаждения поступает через жалюзи в нижней части боковой поверхности кузова, заборную камеру /, камеру с фильтрами 2 и далее он нагнетается в вентиляционный канал 5, откуда подается по двум трактам: расщепитель фаз, атмосфера; выпрямительная установка 6, сглаживающий реактор 7, радиаторы 8 системы охлаждения трансформаторного масла, атмосфера. Средняя скорость воздуха между ребрами охладителей выпрямительной установки составляет около 11 м/с.
На электропоезде ЭР9Е применена выпрямительная установка УВП-5А. Конструктивно установка (рис. 130) представляет собой пыленепроницаемую подва-

Рис. 130. Выпрямительная установка УВП-5А электропоезда ЭР9Е:
/ — шпилька; 2 — полупроводниковый вентиль; 3 — траверса

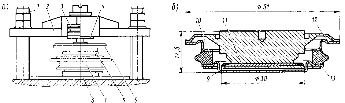
Рис. 131. Прижимное устройство (а) и схематический разрез таблеточного диода ВЛ7-320 (б):
/—шпилька; :> ^траверса: 3 — комплект тарельчатых пружин. 4— втулка, ,5 — изоляционная шайба; 6 — токоотводящая шина; 7 — таблеточный вентиль ВЛ7-320; 8 — электроизоляционный диск; 9 — выпрямительный элемент; 10— металлокера-мнческий корпус. // — термокомпенсирующая вольфрамовая пластина, /? —верхняя манжета металлокерамического кор-песа, 13 —нижняя манжета
гонную камеру с односторонним обслуживанием. Внутри камеры на четырех групповых охладителях размещены таблеточные лавинные диоды. Для лучшего доступа к элементам схемы предусмотрено шарнирное откидывающееся крепление групповых охладителей с углом поворота 90°.
Общее количество диодов в установке — 60 шт. Электрическая схема установки представляет собой однофазный выпрямительный мост с расщеплениями двух плеч для обеспечения плавного бестокового перехода с одной позиции на другую.
Плечи выпрямительного моста состоят из трех параллельных ветвей, в каждой из которых по четыре последовательно соединенных вентиля.
На двух групповых охладителях из четырех расположено по 18 диодов, на двух других — по 12. Контактное нажатие внутри диода и минимальное тепловое сопротивление системы диод — охладитель обеспечивается внешним механическим прижимным устройством, создающим усилие около 1000X9,8 Н (рис. 131, а). В качестве таблеточных вентилей в выпрямительной установке применены циклоустойчивые диоды ВЛ7-320 10—13-го классов (рис. 131,6). Ниже приведены основные параметры диодов ВЛ7-320.
Предельный ток 320 А Повторяющееся напряжение до 1300 В Напряжение лавинообразования до 1625 В Прямое падение напряжения при амплитудном значении предельного тока,-не более 1,45 В Энергия в импульсе при температуре корпуса в рабочем режиме до 70 °С Ю Дж Внутреннее установившееся тепловое сопротивление, не более 0,08 °С/Вт
От группового охладителя каждый вентиль изолирован диском из полимерного материала ПИ-3, отличающегося высокой теплопроводностью и электрической прочностью.
На рис. 132 представлена схема охлаждения трансформаторно-выпрями-тельного блока моторного вагона электропоезда ЭР9Е. Охлаждение оборудования осуществляется набегающим потоком воздуха при движении электропоезда.

Рис. 132. Схема охлаждения трансформаторно-выпрямительного блока моторного вагона ЭР9Е:
/ —расщепитель фат, 2 —трансформатор со встроенным реактором ОДЦЭР-1600/25; 3 — выпрямительная установка УВГЗ-5А; 4 — охладитель масла
Защитные кожуха выпрямительной установки для повышения эффективности охлаждения имеют направляющие патрубки для захвата встречного потока воздуха и направления его на ребра групповых охладителей.
|
|