СИСТЕМА АВТОМАТИЧЕСКОГО РЕГУЛИРОВАНИЯ ВОЗБУЖДЕНИЯ ТЯГОВОГО ГЕНЕРАТОРА
Обеспечивая работу генератора по гиперболической характеристике, система автоматического регулирования возбуждения ограничивает также критические параметры элементов электропередачи по току и напряжению, что отражено на внешней характеристике генератора (рис. 5).
Ограничение по максимальному напряжению на участке АБ внешней характеристике генератора в основном определяется предельным напряжением выпрямительной установки.
* Здесь и далее цифры в скобках соответствуют номерам проводов на схеме.
Рабочий (гиперболический) участок БВГ ■внешней характеристики, удовлетворяющий условию Рг= const, характеризует ограничение по мощности дизеля. С увеличением реализуемых токов наступает ограничение их длительности по условиям нагрева тяговых электродвигателей и диодов выпрямительной установки и в конечном итоге по максимально допустимому току элементов электропередачи на участке Г Д. Как уже отмечалось ранее, регулируемым параметром системы возбуждения является выпрямленный управляемым выпрямителем УВВ ток 1В в обмотке возбуждения., тягового генератора. .Процесс регулирования тока возбуждения основан на зависимости продолжительности времени открытого состояния выпрямителя от разности сигналов задания и сигналов обратной связи по току нагрузки и напряжению генератора, подаваемых в блок БУВ.
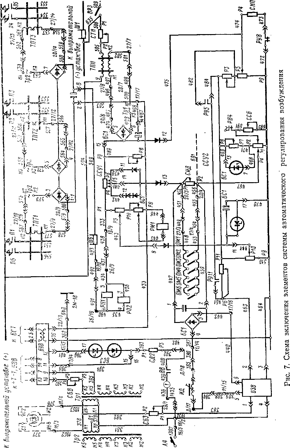
Сигналы задания формируются тахометрическим блоком БЗВ і индуктивным датчиком ИД. С тахометрического блока БЗВ ь'іірямлепное напряжение подается на потенциометры задания *~СУ2 (рис. 6). Величина этого напряжения строго пропорцио-! тьна частоте выходного напряжения возбудителя СВ, от кото-> о питается блок БЗВ, и, следовательно, пропорциональна ча-■ не вращения вала дизеля. При неизменной, заданной по по-I' ч'ям контроллера частоте вращения вала дизеля величина научения U г.зв будет также неизменной, определенной для мой позиции, достигая максимальной величины около 45 В 5-й позиции контроллера. На потенциометрах задания ССУ2 f азуются также постоянные для каждой позиции падения на-жония £/рк!-;>!!, U-pi,-vi, Un-ng — сигналы задания. Для питания блока БЗВ (рис. 7) используется переменное і,ряжение с выхода С1-С2 возбудителя, которое подается на г акты ШР 1 и 4 блока через балластный резистор СБЗ. Вы-<'"ое выпрямленное напряжение подается с контактов ШР бло-БЗВ 2 по проводу 463 и 3 по проводу 464 на потенциометры .ания ССУ2.
От -блока БЗВ питается также катушка ИД индуктивного дат-а. Переменное напряжение с контакта -5 по проводам 389, 388, через катушку ИД по проводам 385, 386, 387 и с контакта 6 л-» блока БЗВ подается на выпрямительный мост в блоке БС1.


Рис. 6. Принципиальная схема системы автоматического рег\'л:],ю:з<-н<::-■ возбуждения
Выпрямленное напряжение с моста БС1 подается на потепцно метр СИД по проводам 447, 459, напряжение на котором складывается с напряжением задания. Таким образом, при определенных условиях объединенный регулятор дизеля с помощью индуктивного датчика может менять величину напряжения задания.
Узел обратной связи по току и напряжению тягового генера ■ тора состоит из трансформаторов постоянного тока ТПТ1—3 и постоянного напряжения ТИН (представляющих собой простей шие магнитные усилители), выпрямительных мостов на выход-трансформаторов и потенциометров обратной связи ССУ1, выполненных по П-образной схеме (см. рис. б).
Как видно из схемы, на потенциометр ССУ1 подаются токи обратной связи цт и г'тн от выпрямительных мостов трасформато-ров ТПТ и ТПН. Управляющей (подмагнпчивающей) обмоткой каждого ТПТ являются провода (кабели) силовой цепи пары тяговых электродвигателей, а у трансформатора ТПН — управляю щая' обмотка, включенная на напряжение тягового генератора Поэтому подмагпичивание сердечников и выходные токи рабочих обмоток ТПТ и ТИП прямо пропорциональны току н напряжению генератора. Чем больше будут ток или напряжение гелера тора, тем больше будут токи на выходе ТПТ или ТПН, а, следовательно, и падение напряжение на потенциометрах ССУ1. «Минусы» выходных выпрямительных мостов трансформаторов соединены вместе, а «плюсы» — через потенциометры ССУ1. В результате этого токи обратной связи /тт и гтп образуют на них па-

Дения напряжения с/р3_р8, Урэ-Рв и UP5-P8, пропорциональные соответственно току нагрузки /г, напряжению генератора Uv и сумме тока и напряжения генератора.
Управляющая обмотка У—У ТПН (см. рис. 7) включена на напряжение генератора через регулируемый резистор С77/ (504, 505 и 506, 635). На рабочую обмотку Н1-Н2 ТПН и выходной выпрямительный мост переменное напряжение подается с обмотки НЗ-КЗ распределительного трансформатора ТР1 (498, 500, 499, 501, 502, 497, 496, 495, 494). Выпрямленные напряжения подаются на клеммы Р9 (489) и Р8 (488, 487) потенциометра ССУ1, ток iTH образует падение напряжения Uvo-pa и выполняет функцию сигнала обратной связи по напряжению.
Управляющей обмоткой ТПТ являются силовые кабели от генератора к тяговым электродвигателям, проходящие попарно через каждый из трех ТПТ: ТПТ1 — кабели 556, 551; ТПТ2 — кабели 552, 553; ТПТЗ — кабели 554, 555.
На рабочие обмотки Н1-Н2 ТПТ и выпрямительные мосты переменное напряжение подается с обмоток распределительного трансформатора ТР2: Н2-К2 — ТПТ1; НЗ-КЗ — ТПТ2; Н4-К4-ТПТЗ.
Через три последовательно соединенных моста выпрямленный ток ;тт подается на клеммы Р1 (549, 493, 492, 491, 490, 434, 437 438, 533) и Р8 (503, 487) потенциометров ССУ1, откуда снимает ся напряжение l/p3_p8, выполняющее функцию сигнала обратной связи по току нагрузки.
Последовательно соединенные выпрямительные мосты, выделяющие наибольший из поступающих сигналов от трансформаторов ТПТ1—3, называют узлом выделения максимума. В самок деле, если ток пары электродвигателей в кабелях, проходящих через ТПТ1, больше, чем в кабелях каждого из остальных трансформаторов ТПТ2—3, то больше и подмагничивающее действие сердечника ТПТ1. Индуктивное сопротивление рабочей обмотки 77777 в этом случае меньше, чем у остальных трансформаторов, а значит, переменное напряжение цепи Uu приложенное к мосту, будет наибольшим. Выпрямительные мосты на выходе соединены последовательно, благодаря чему на ССУ1 проходит ток трансформатора, который в данный момент является наибольшим и пропорционален наибольшему току нагрузки пары тяговых двигателей.
Потенциометры обратной связи ССУ1, задания ССУ2 и индуктивного датчика СИД образуют селективный узел, который выбирает (селекционирует) наибольший сигнал обратной связ* и сравнивает его с сигналом задания (см. рис. 6). «Минусовые» точки потенциометров соединены между собой через управляющую обмотку ОУ магнитного усилителя МУ блока БУВ. «Плюсовые» точки потенциометров соединены через разделительные диоды Д1, Д2, ДЗ так, что каждая пара сигналов — обратной связи и задания — действует встречно. Каждая такая пара сигналоь с включенными в их цепь разделительным диодом и обмоткой
явления МУ образует канал регулирования (І, II, III), в ко-ч/ом под действием разности сигнала задания и сигнала обрат-1т связи будет протекать ток определенной величины (сигнал согласования). Работа каналов /, // и III происходит не одно-менно. В открытом состоянии находится тот из каналов, сиг-I обратной связи которого превышает сигнал задания, и раз-:.тптельнын диод открыт. Два других канала будут закрыты, к как сигналы рассогласования в них будут меньше, чем сигмы задания, и разделительные диоды будут закрыты. В зависимости от величины сигнала рассогласования блок БУВ леняет момент включения тиристоров +Т и —Т управляемого 'прямителыюго моста УВВ, изменяя тем самым ток возбужде-л и выходное напряжение тягового генератора. Принцип формирования управляющих импульсов блоком БУВ ожпо иллюстрировать функциональной схемой блока (рис. 8). 'этой схеме каждый из узлов блока выполняет определенные икции в соответствии с рассмотренными нами ранее принципа-управления выпрямительным мостом УВВ.
Выходными узлами блока являются два блокинг-генератора і 7 и БГ2, или, "иначе, импульсные генераторы напряжения, ни формируют импульсы необходимой величины и длительно-ni и подают их на управляющие электроды тиристоров +Т и —Т • авляемого моста. Каждый из блокинг-геператоров БГІ и БГ2 'ютает только в определенный полупериод синусоидального іряжения возбудителя, т. е. включает только один тиристор і. рис. 3). Блокинг-генератор БГ1 подает импульсное напряже-t на катод — управляющий электрод тиристора +Т по цепям; ітакт 7 штепсельного разъема (ШР) блока БУВ, провода 405, ~. 1, 653, 406, контакт 1 ШР выпрямителя УВВ и на управлято-j 'и электрод; контакт 8 ШР блока БУВ, провода 409, 658, 657, . .'. контакт 3 ШР выпрямителя УВВ и на катод. Блокинг-гене-, ->р БГ2 подает импульсное напряжение на катод — управляю-электрод тиристора —Т по цепям; контакт 13 ШР блока

Рис 8 Функциональная схема блока БУВ:
:-Ц -синхронизирующая цепь;' ПН - преобразователь и«~^и^Уге^е^™р™ тель; РЦ — распределительная цепь; Ы 1 и ы і — оло^инг генераторы
БУВ, провода 403, 652, 651, 404, контакт 2-ШР выпрямителя УВВ и на управляющий электрод; контакт 14 ШР блока БУВ, провода-407, 656, 655, 408, контакт 4 ШР выпрямителя УВВ и на катод.
Входным узлом блока БУВ является синхронизирующая цепь СЦ (см. рис. 8). Основная задача синхронизирующей цепи,— обеспечить переключение преобразователя напряжения ПИ синхронно с частотой поступающего на него переменного напряжения от возбудителя.
Питание синхронизирующей цепи СЦ осуществляется от синхронного возбудителя СВ (см. рис. 7). Выходное переменное напряжение возбудителя снимается с клемм С1 по проводам 377,, 1052, 378 и С2 по проводам 376, 1053 и подается на клеммы Н1— К1 распределительного трансформатора Тр1. Со вторичной обмотки Н5—/\"5 этого трансформатора через балластный резисторі СБВ по проводам 396, 397, 395 пониженное переменное напряжение подается на контакты 9, 10 ШР блока БУВ,
Основная задача преобразователя напряжения ПН — «діе-спе--чить питание электронной схемы блока БУВ. Питание на' преобразователь подается вспомогательными контактами контактора ВВ по цепи: автомат А4, провода 1307, 1432, 1435, 430, замыкающий вспомогательный контакт ВВ, провода 400, 392, резистор СД2, провод 393, контакт 16 ШР блока БСЗ к стабилитронам, контакт 17 ШР блока БСЗ, провода 399, 360, 640 на минус цепа управления к ШР 2М—18. Стабилизированное пониженное до 13 В постоянное напряжение с контактов ШР блока БСЗ 15 по. проводам 394, 398 и 17 по проводам 399, 401 подается па клеммы // и 12 ШР блока БУВ. Это напряжение преобразовывается преобразователем с помощью синхронизатора в переменное строго определенной величины и с частотой, определяемой входным' напряжением возбудителя. Затем напряжение выходных обмоток преобразователя используется для питания магнитного усилителя-и получения изолированных источников постоянного тока, запирающих блокинг-генераторы и устраняющих их самопроизвольное включение, причем полярность запирающих напряжений противоположна, так что один блокинг-генератор может включаться; в положительный полуперпод, а другой - - в' отрицательный.
Магнитный усилитель служит для сдвига во времени управляющих импульсов, т. е. играет роль фазосдвигающей цепочки, благодаря чему изменяется угол регулирования а включения тиристоров выпрямителя УВВ. Магнитный усилитель выполнен-с внутренней обратной отрицательной связью, имеет очень крутую характеристику и большой коэффициент усиления. Поэтому*' с помощью незначительного изменения тока в управляющей обмотке МУ можно изменять момент насыщения (максимальную» величину индукции) сердечника МУ в любой момент времени полупериода питающего напряжения (практически от 0 до 180°). Быстрое достижение насыщения сердечника МУ приводит к тому, что в нагрузке МУ (на выходе) образуется импульс напряжения,
используемый затем для включения БГ1 и БГ2. Для данного магнитного усилителя чем меньше будет величина сигнала рассогласования, тем раньше (в начале полупериода питающего напряжения) произойдет насыщение сердечника и тем раньше на нагрузке рабочей обмотки МУ будет импульс напряжения, необходимый для включения БГ1 и БГ2.
Управляющая обмотка МУ, как уже отмечалось ранее, питается изменяющимся сигналом рассогласования селективного узла, подаваемого на клеммы 3 и 6 ШР блока БУВ по проводам 433, 402. Рабочая обмотка МУ питается от преобразователя напряжения ПН. Нагрузкой рабочей обмотки является резистор определенной величины, напряжение с которого снимается и подается в распределительную цепь РЦ.
Распределительная цепь РЦ удерживает включение соответствующего блокинг-генератора от токов холостого хода МУ и обеспечивает их включение только от рабочего напряжения. Напряжение с нагрузки МУ поступает на конденсатор распределительной цепочки, заряжая его до определенной величины, необходимой для включения одного из блокинг-генераторов.
Таким образом, изменяя сигнал рассогласования в управляющей обмотке МУ, можно изменять момент включения тиристоров + Г п —Т выпрямительного моста УВВ, т. е. изменять угол регулирования а.
Необходимо еще раз отметить, что МУ выполнен с внутренней обратной отрицательной связью, поэтому при минимальном сигнале рассогласования или его отсутствии в управляющей обмотке МУ угол регулирования будет минимальным, а ток в обмотке возбуждения тягового генератора будет наибольшим для заданной позиции контроллера. При увеличении сигнала рассогласования угол регулирования увеличивается, а ток возбуждения уменьшается.
Следовательно, автоматическая система регулирования возбуждения выполняет все требования управляемого выпрямителя для изменения тока возбуждения: подает управляющие импульсы напряжения синхронно с частотой питающего напряжения 11в н, сдвигая угол регулирования а, изменяет продолжительность открытого состояния выпрямительного моста УВВ.
Для устранения неустойчивой работы электрической схемы возбуждения и колебаний тока и напряжения тягового генератора служит узел стабилизации, сигнал с которого поступает на одну из обмоток управления МУ блока БУВ. Эту обмотку МУ называют стабилизирующей.
Резистор ССТ (см. рис. 3) включен на выпрямленное пульсирующее напряжение выпрямителя УВВ (425, 423, 413). Высокочастотная составляющая этого напряжения (для исключения помех) отфильтровывается (поглощается) конденсатором блока БСТ (419, 421). Низкочастотная часть пульсирующего напряжения, имеющая сравнительно медленные периодические колебания й повторяющая колебания напряжения тягового генератора, пе-
редается через конденсатор и резистор по проводам 421 и 418, 417, 416, 415 на стабилизирующую обмотку МУ к контакту 5 ШР блока БУВ. Второй конец стабилизирующей обмотки контакт 2 ШР блока БУВ включен непосредственно на резистор ССТ через провода 414, 420, 412, 410.
Стабилизирующая обмотка работает только при переходных процессах в электрической схеме возбуждения. Магнитный поток €е в сердечнике МУ направлен встречно магнитному потоку от сигнала рассогласования в управляющей обмотке МУ и задерживает изменение угла регулирования а при резких изменениях тока в обмотке возбуждения генератора. Этим достигается стабилизация работы электрической схемы возбуждения.










