6.4. Котел Е-420-13,8-560 ГМН
(БКЗ-420-140НГМ-4)
Котел
Е-420-13,8-560 ГМН (БКЗ-420-140 НГМ-4) предназначен для работы на природном
газе и мазуте с теплофикационными турбинами на высокие параметры пара.
Котел
вертикально-водотрубный, однобарабанный с естественной циркуляцией, однокорпусный,
сомкнутой П-образной компоновки, в газоплотном исполнении закрытой компоновки,
рассчитанный на высокие параметры пара, предназначен для работы под наддувом
(рис. 95, 96).
Топочная
камера призматической формы открытого типа, с размерами в плане по осям труб
5,93х13,18 м, имеет объем 1427 м2.
Топочная
камера и конвективная шахта экранированы мембранными панелями из гладких труб 0
60х6 мм (сталь 20 и 15ХМ) с вваркой полосы (сталь 20)
и шагом труб 80 мм.
Под
топки образован фронтовым и задним экранами, имеет наклон 15° к горизонтали.
Фронтовой
экран вверху образует наклонный потолок топки; задний экран переходит в
трехрядный фестон.
Блоки
топочной камеры и конвективного газохода подвешены на тягах к потолочному
перекрытию каркаса котла и свободно расширяются вниз. Жесткость и прочность
стен топочной камеры обеспечиваются поясами жесткости.
Топка
оборудована восемью комбинированными газомазутными
горелками, расположенными в два яруса (по четыре в каждом ярусе).
Барабан
котла сварной конструкции, имеет внутренний диаметр 1600 мм с толщиной стенки
112 мм (сталь 16ГНМА).
Вода
из барабана к испарительным экранам подается по стоякам диаметром 219 мм с
толщиной стенки 20 мм (сталь 20). Пароводяная смесь из экранов в барабан
отводится по трубам 0 159х15 мм (сталь 20).
Схема
испарения двухступенчатая с промывкой пара питательной водой. Первая ступень
испарения включена непосредственно в барабан котла и представляет собой сочетание
внутрибарабанных циклонов и промывочных устройств.
Вторая ступень испарения включена в выносные сепарационные циклоны, имеющие
наружный диаметр 426 мм.
Экраны
топочной камеры разделены на 15 самостоятельных контуров циркуляции.
Пароперегреватель
радиационно-конвективного типа: радиационная часть выполнена в виде ширмовых поверхностей нагрева из труб 0 32х5 мм (сталь
12Х1МФ) и расположена в верхней части топочной камеры.
Конвективная
часть пароперегревателя состоит из змеевиковых поверхностей, расположенных в
опускном газоходе конвективной шахты, выполненных из труб диаметром 32х4 и 38х5
мм и 0 32х5 мм (сталь 12Х1МФ), (сталь 20, 12Х1МФ).
Выходные
ступени конвективного пароперегревателя третья и четвертая ступени выполнены из
труб 0 32х4,5 мм (сталь 12Х18Н12Т).
Радиационно-конвективной частью пароперегревателя являются
ограждающие поверхности потолка, боковых и задней стен конвективного газохода,
выполненные из труб диаметром 60 мм с толщиной стенки 6 мм (сталь 20).
За пароперегревателем четвертой ступени в конвективном газоходе (по
ходу газов) расположены блоки первой ступени пароперегревателя из труб 0 32х4
мм (сталь 20 и 12Х1МФ). Ниже первой ступени
пароперегревателя расположены две секции водяного
экономайзера кипящего типа, гладкотрубный, змеевиковый, выполненный из труб 0
32х4 мм (сталь 20). Коллекторы экономайзера размещены в газоходе.
Для
подогрева воздуха котел оборудован двумя вращающимися регенеративными
воздухоподогревателями с диаметром ротора 5,4 м.
Тракт
пара пароперегревателя состоит из двух независимых потоков.
Температура
перегретого пара регулируется впрыском собственного конденсата и рециркуляцией
дымовых газов в воздушный тракт горелок.
|
Рис. 95. Продольный разрез
котла Е-420-13,8-560 ГМН (БКЗ-420-140 НГМ-4) |
|
Рис. 96. Поперечный разрез
котла Е-420-13,8-560 ГМН (БКЗ-420-140 НГМ-4) |
На впрыск поступает
конденсат, полученный в специальной установке, расположенной в пределах котла.
Благодаря тому, что
все наружные поверхности котла полностью экранированы мембранными панелями,
отпадает необходимость в обмуровке поверхностей (они только изолируются).
Изоляция котла
выполняется из волокнистых рулонных материалов или вулканито- вых
плит.
Огнеупорные материалы
применены только в амбразурах и гарнитуре.
Каркас
котла представляет собой пространственную рамную конструкцию, состоящую из
колонн, балок и верхнего потолочного перекрытия, опирающегося на колонны.
Узлы
котельного агрегата выполнены в виде законченных транспортабельных блоков.
В
блоки поверхностей нагрева включены уплотнения мест прохода змеевиков через газоплотные стены. Блоки газоплотных
стен снабжены необходимыми стяжками для сборки и сварки продольных и поперечных
стыков.
Места
прохода змеевиков ширм пароперегревателей через цельносварные ограждения котла
закрыты специальными уплотнениями.
«Теплый
ящик», в который включены коллекторы и перепускные трубы пароперегревателя,
расположенные на задней стене газохода, выполняет только функции групповой
изоляции. Плотность котла обеспечивается конструкцией внешних ограждений топок
и газохода.
Котел
спроектирован с учетом ремонта всех поверхностей нагрева внутри газохода.
Котел
снабжен необходимой арматурой, устройствами для отбора проб, а также контрольно-измерительными
приборами.
Процессы
питания котла, регулирования температуры перегретого пара и горения
автоматизированы. Предусмотрены средства тепловой защиты технологических процессов.
Котел
поставляют транспортабельными блоками.
|
|
Номинальная паропроизводительность, т/ч Вид топлива
Давление пара на выходе из пароперегревателя, МПа
(кгс/см2) Температура, °С: перегретого пара
питательной воды уходящих газов КПД (брутто), при номинальной нагрузке, %:
расчетный гарантийный Расход топлива, т/ч:
натурального (для газа-м3/ч) условного
Аэродинамическое сопротивление тракта по стороне, мм
вод. ст. газовой воздушной Теплопроизводительность, Гкал/ч Температура в
воздухоподогревателе, °С: воздуха: на входе на выходе газов: на входе на выходе
Тепловое
напряжение поперечного сечения топки, ккал/(м2-ч) Тепловое
напряжение объема топки, ккал/(м -ч) Объем топки, м3
|
420 Газ, мазут 13,8 (140) 560 230 109/147* 94,8/93,4* 94/93 30,2-103/28,5* 38,2 318,6 76,4 250 30/70*
235/272* 293/336* 109/147* |
|
6 |
|
1,66-10' 183-10 1427 |
|
3 |
Размеры
ячейки по осям колонн, м:
ширина
глубина
Высота до верха хребтовой
балки, м
* В числителе данные при сжигании газа,
в знаменателе - мазута
6.5. Котел Е-420-13,8-560 БЖ
(БКЗ-420-140 ПТ-2)
Котел
Е-420-13,8-560 БЖ (БКЗ-420-140 ПТ-2) (рис. 97, 98) предназначен для работы на иршабородинском и назаровских
бурых углях Канско-Ачинского бассейна, для выработки перегретого пара на
тепловых электростанциях с теплофикационными турбинами на высокие параметры
пара.
Котел
вертикально-водотрубный, однобарабанный, с естественной циркуляцией, од- нокорпусный, рассчитанный на
высокие параметры пара, в газоплотном исполнении,
П-образной закрытой компоновки.
Топочная
камера с жидким шлакоудалением. Шлакоудаление непрерывное, механизированное,
со шнеком и дробилкой.
Топочная
камера полуоткрытая. В нижней части топки трубы фронтового и заднего экранов
образуют пережим, разделяющий утепленную камеру горения и камеру охлаждения.
Камера горения выполнена в виде двух восьмигранных предтопков,
соединенных переходным коридором.
Трубы
заднего экрана внизу топки образуют слабонаклонный под
с двумя летками для выхода шлака. Стены предтопков ошипованы и утеплены.
Камера
охлаждения призматическая.
Топочная
камера образована цельносварными мембранными газоплотными
панелями из труб 0 60х6 мм с вваренной полосой (сталь 20). Шаг труб в панелях
составляет 80 мм. Угловые грани предтопков
экранированы трубами 0 76х7 мм с шагом 113 мм (сталь 20). Размеры камеры
охлаждения по осям труб 6,58х 14,45 м.
Потолок
топки закрывается панелями фронтового экрана.
Топочная
камера оборудована восемью щелевыми пылеугольными прямоточными горелками,
установленными на угловых гранях предтопков (по
четыре горелки на каждом предтопке). Оси горелок
каждого предтопка направлены по касательной к
воображаемой окружности диаметром 1000 мм. Восемь сбросных
горелок расположены выше основных.
Барабан
котла сварной конструкции имеет внутренний диаметр 1600 мм с толщиной стенки
112 мм (сталь 16ГНМА).
Вода
из барабана к испарительным экранам подается по 16 стоякам диаметром 219 мм с
толщиной стенки - 20 мм (сталь 20). Пароводяная смесь из экранов в барабан отводится
по трубам 0 159х15 мм (сталь 20).
Схема
испарения - двухступенчатая, с промывкой пара питательной водой. Первая ступень
испарения включена непосредственно в барабан котла и представляет собой сочетание
внутрибарабанных циклонов и промывочных устройств.
Вторая ступень испарения включена в выносные сепарационные циклоны, имеющие
наружный диаметр 426 мм.
Пароперегреватель
радиационно-конвективного типа состоит из ширм, размещенных в верхней части
топки и выполненных из труб 0 42х5 мм (сталь 12Х1МФ), а также из газоплотных цельносварных панелей из труб 0 60х6 мм (сталь
20), расположенных на боковых экранах горизонтального газохода.
|
24 36 32,4 |
Боковые
стены горизонтального газохода, а также потолок, передняя и задняя стены
опускного газохода выполнены из труб 0 60х6 мм, с шагом 100 мм с вваркой полосы (сталь 20).
|
Рис. 97. Продольный разрез
котла Е-420-140-13,8-560 БЖ (БКЗ-420-140 ПТ-2) |
|
Рис. 98. План и горизонтальные
разрезы котла Е-420-140-13,8-560 БЖ (БКЗ-420-140 ПТ-2) |
Конвективный
пароперегреватель состоит из двух частей, расположенных в горизонтальном
газоходе. Обе части выполнены на труб
0 38х4 мм, 0 38х6 мм и 0 38х5 мм (сталь 20, 12Х1МФ, 12Х18Н12Т).
Тракт пара
пароперегревателя состоит из двух независимых потоков. Температура перегретого
пара регулируется впрыском собственного конденсата в пароохладитель.
В опускном
газоходе размещены «в рассечку» гладкотрубный водяной
экономайзер и трубчатый воздухоподогреватель.
Экономайзер
выполнен из труб 0 32х4 мм (сталь 20); воздухоподогреватель - из труб 0 40х1,5
мм (Ст. 3).
Топочная
камера и пароперегреватель подвешены к собственному
каркасу. Конвективная шахта установлена на портале.
Котел
имеет «теплый ящик» т. е. тепловую камеру для совместной изоляции перепускных
труб и камер, расположенных в верхней части котла, и обеспечения газоплотности котла.
Обмуровка
котла представляет собой натрубную изоляцию из вулканитовых плит или асбестовой напыленной
массы. Огнеупорные материалы применены только на амбразурах горелок и
гарнитуре.
Узлы
котельного агрегата выполнены в виде законченных транспортабельных блоков.
Для
очистки поверхностей нагрева предусмотрены виброочистка
для ширм; обду- вочные устройства - для стен
топки и конвективных пакетов пароперегревателя; дробео-
чистка - для водяного экономайзера и воздухоподогревателя.
Котел
спроектирован с учетом возможности ремонта всех поверхностей нагрева внутри
газохода.
Котел
снабжен необходимой арматурой, устройствами для отбора проб пара и воды, а
также контрольно-измерительными приборами. Процессы питания котла,
регулирования температуры перегретого пара и горения автоматизированы.
Предусмотрены средства тепловой защиты.
Номинальная паропроизводительность,
т/ч 420
Вид топлива Ирша-
Бородинский бурый уголь
Давление пара на выходе из
пароперегревателя. МПа (кгс/см2) 13,8 (140)
Температура, °С:
перегретого
пара 560
питательной воды 210
уходящих газов 147
КПД (брутто) при номинальной нагрузке, %;
расчетный 92,09
гарантийный 91,0
Расход топлива, т/ч:
натурального 73,6
условного 39,3 Аэродинамическое
сопротивление тракта по стороне, мм вод. ст.:
газовой 117,4
воздушной 75
Теплопроизводительность, Гкал/ч 250
Температура в воздухоподогревателе, °С: воздуха:
на входе 60
на выходе 348
газов:
на входе 430
на выходе 147
Тепловое напряжение
поперечного сечения топки, ккал/(м -ч) 2,89-10
Тепловое напряжение объема топки, ккал/(м3-ч) Объем топочной камеры, м3 Размеры
котла по осям колонн, м:
ширина
глубина
|
114,5-103 2,4-103 |
|
3 |
|
30 36 42 |
Высота до верха хребтовой балки, м
|
|
6.6. Котел Е-420-13,8-560 КТ
(БКЗ-420-140-5)
Котел
Е-420-13,8-560 КТ (БКЗ-420-140-5) предназначен для работы на экибастузском каменном угле для выработки перегретого пара
на тепловых электростанциях с теплофикационными турбинами на высокие параметры
пара.
Котел
вертикально-водотрубный, однобарабанный, с естественной циркуляцией, од- нокорпусный, рассчитанный на
высокие параметры пара в газоплотном исполнении,
Т-образной сомкнутой закрытой компоновки (рис. 99, 100).
Топочная
камера с твердым шлакоудалением. Шлакоудаление механизированное, непрерывное, с
помощью шнековых транспортеров и дробилок.
Топочная
камера призматическая, открытого типа, с размерами в плане по осям труб
15,42х8,98 м. Топка экранирована цельносварными газоплотными
испарительными стенками, выполненными из труб 0 60х6 мм (сталь 20) с вваркой полосы. Шаг труб в панелях равен 80 мм.
Боковые
экраны топочной камеры в нижней части образуют скаты холодной воронки, а в
верхней части - пережим и выполняют роль
разделительных стенок трех газоходов.
Топка
оборудована восемью двухпоточными по аэросмеси и вторичному воздуху вихревыми пылеугольными
горелками со встроенными мазутными форсунками, расположенными на боковых
стенах (по четыре на каждой) встречно на одной высотной отметке. Двухпоточная горелка позволяет эксплуатировать котел при
отключении одной или двух мельниц со всеми работающими горелками, что повышает
надежность работы горелок и экономичность котла в таких режимах.
Барабан
котла сварной конструкции имеет внутренний диаметр 1600 мм с толщиной стенки
112 мм (сталь 16ГНМА).
Схема
испарения двухступенчатая, с промывкой пара питательной водой. Первая ступень
испарения включена непосредственно в барабан котла и представляет собой сочетание
внутрибарабанных циклонов и промывочных устройств.
Вторая
ступень испарения включена в две группы выносных сепарационных циклонов,
имеющих наружный диаметр 426 мм. Вода из барабана к испарительным экранам подается
по 16 стоякам диаметром 219 мм с толщиной стенки 20 мм (сталь 20). Пароводяная
смесь из экранов в барабан отводится по трубам 0 159х15 мм (сталь 20).
Пароперегреватель
радиационно-конвективного типа размещен в верхней части топочной камеры и в
двух симметрично расположенных опускных газоходах. Два опускных газохода
примыкают к боковым стенкам топочной камеры в верхней части.
Потолок
топочной камеры и опускных газоходов, а также фронтовые и задние стенки
опускных газоходов экранированы цельносварными газоплотными
пароперегреватель- ными панелями
из труб 0 42х5 мм (сталь 20), с вваркой полосы
толщиной 6 мм. Панели охлаждаются насыщенным паром. В среднем подъемном
газоходе размещены ширмовые поверхности
пароперегревателя, выполненные из труб 0 32х5 мм (сталь 12Х1МФ). В двух крайних
опускных газоходах симметрично размещены поверхности конвективного пароперегревателя
из труб 0 32х4 мм, 0 32х5 мм и 0 32х4,5 мм (сталь 20, 12Х1МФ, 12Х18Н12Т).
|
Рис. 99. Продольный разрез
котла Е-420-13,8-560 КТ (БКЗ-420-140-5) |
Все мембранные цельносварные панели топочных экранов, потолка и
опускных конвективных газоходов жестко сварены между собой в единую газоплотную коробку. Надежность работы указанных
соединений достигается благодаря циркуляции во всех панелях рабочей среды с
приблизительно одинаковой температурой.
Блоки
конвективного пароперегревателя крепятся на подвесных трубах.
|
11150 Рис. 100. Поперечный разрез
котла Е-420-13,8-560 КТ (БКЗ-420-140-5) |
Тракт пара
пароперегревателя состоит из двух независимых потоков. Температура перегретого
пара регулируется двумя впрысками собственного конденсата: в рассечке ширм и
перед выходной ступенью пароперегревателя.
Для защиты
пароперегревателя от пережога при растопках применяется впрыск питательной
воды в растопочном пароохладителе.
За конвективным пароперегревателем
по ходу газов в каждом конвективном газоходе расположена вторая ступень
водяного экономайзера.
Первая ступень водяного
экономайзера и трубчатый воздухоподогреватель вынесены
в отдельную конвективную шахту. Экономайзер выполнен из труб 0 32х4 мм (сталь
20).
|
А-А |
|
38790
|
Кубы воздухоподогревателя
изготовлены из труб 0 40х1,5 мм (Ст. 3). Блоки первой ступени водяного
экономайзера, расположенного между кубами воздухоподогревателя,
установлены друг на друге и сварены между собой плотным
швом, что снижает до минимума присосы холодного воздуха.
Топочная
камера котла и пароперегреватель подвешены к
собственному каркасу. Конвективная шахта установлена на собственном портале.
Котел
оборудован тепловой камерой («теплым ящиком») для совместной изоляции перепускных
труб и камер котла.
Обмуровка
котла представляет собой натрубную изоляцию, из вулканитовых плит или асбоперлитовой
напыляемой массы. Огнеупорные материалы применены только на амбразурах горелок
гарнитуре.
Для
очистки поверхностей нагрева котла предусмотрены обдувочные
аппараты, а для очистки поверхностей нагрева вынесенной конвективной шахты - дробеочиститель-
ная установка.
Котел
спроектирован с учетом возможности ремонта всех поверхностей нагрева внутри
котла.
Котел
снабжен необходимой арматурой, устройствами для отбора проб пара и воды и
контрольно-измерительными приборами.
Процессы
питания котла, регулирования температуры перегрева пара и горения автоматизированы.
Предусмотрены
средства тепловой защиты технологических процессов.
Котел поставляют
транспортабельными блоками.
Номинальная паропроизводительность, т/ч 420
Вид топлива Экибастузский
каменный уголь
Давление пара на выходе из
пароперегревателя, МПа (кгс/см2) 13,8 (140) Температура, °С:
перегретого
пара 560
питательной воды 230
уходящих газов 132
КПД (брутто) при номинальной нагрузке, %:
расчетный 92,2
гарантийный 91
Расход топлива, т/ч:
натурального 71,3
условного 38,6 Аэродинамическое сопротивление тракта по
стороне, мм вод. ст.:
газовой 170,4
воздушной 83,5
Теплопроизводительность, Гкал/ч 246
Температура в воздухоподогревателе, °С: воздуха:
на входе 30
на
выходе 418
газов:
на входе 465
на выходе 132
Тепловое напряжение
поперечного сечения топки, ккал/(м2-ч) 2,9-106
Тепловое напряжение объема
топки, ккал/(м -ч) 133-10
3
Объем
топочной камеры, м3 Размеры котла по осям колонн, м:
ширина
глубина
|
2-103 39 24 38,9 |
Высота
до верха хребтовой балки, м
|
|
6.7. Котел Е-420-13,8-560 БТ
(БКЗ-420-140-7)
Котел
Е-420-13,8-560 БТ (БКЗ-420-140-7) предназначен для работы на райчихинском буром угле для выработки перегретого пара на
тепловых электростанциях с теплофикационными турбинами на высокие параметры
пара.
Котел
вертикально-водотрубный, однобарабанный, с естественной циркуляцией, однокорпусный,
рассчитан на высокие параметры пара.
Котел
в газоплотном исполнении имеет П-образную закрытую
компоновку и уравновешенную тягу (рис. 101, 102).
В
топочной камере предусмотрено твердое шлакоудаление. Шлакоудаление механизированное,
непрерывное с помощью шнековых транспортеров и дробилок.
Топочная
камера - призматическая, открытого типа, с размерами в плане по осям труб 7,7х
14,46 м. Топка экранирована цельносварными газоплотными
испарительными стенками, выполненными из труб 0 60х6 мм с вваренной полосой
размером 20х6 мм (сталь 20). Шаг труб в панелях равен 80 мм.
В
нижней части топки трубами фронтового и заднего экранов образована «холодная
воронка».
В
верхней части топки трубы заднего экрана образуют аэродинамический выступ.
Потолок
топки закрывается панелями фронтового экрана.
Топка
оборудована шестью вихревыми горелками, расположенными в два яруса на фронтовой
стене.
Барабан
котла сварной, имеет внутренний диаметр 1600 мм с толщиной стенки 112 мм (сталь
16ГНМА).
Схема
испарения двухступенчатая с промывкой пара питательной водой. Первая ступень
испарения включена непосредствено в барабан котла и
представляет собой сочетание внутрибарабанных
циклонов и промывочных устройств.
Вторая
ступень испарения включена в испарительные выносные циклоны наружным диаметром
426 мм.
Вода
из барабана к испарительным экранам подводится по стоякам диаметром 219 мм с
толщиной стенки 20 мм (сталь 20) и отпускным трубам диаметром 159 мм с толщиной
стенки 14 мм. Пароводяная смесь из экранов в барабан отводится по трубам 0
159х15 мм (сталь 20).
Пароперегреватель
радиационно-конвективного типа. Радиационная часть пароперегревателя состоит
из ширм, размещенных в верхней части топочной камеры, выполненных из труб 0
42х5 мм (сталь 12Х1МФ).
Конвективная
часть в виде отдельных ступеней расположена в горизонтальном газоходе и
выполнена из труб 0 38х4 мм, 0 38х4,5 мм, 0 38х5 мм и 0 38х6 мм (сталь 20,
12Х1МФ, 12Х18Н12Т).
Боковые
стены горизонтального газохода, а также газоплотная
часть опускного газохода (потолок, задняя и передняя стены) экранированы
горизонтальными цельносварными панелями пароперегревателя из труб 0 60х6 мм с
шагом 100 м.
Трубы
передней стены опускного газохода в месте прохода газов образуют фестон.
Все
мембранные цельносварные панели топочных экранов жестко сварены между собой в
единую газоплотную коробку.
|
Рис. 101. Продольный разрез
котла Е-420-13,8-560 БТ (БКЗ-420-140-7) |
Надежность работы всех соединений достигается благодаря циркуляции
во всех панелях рабочей среды с приблизительно одинаковой температурой.
Тракт пара пароперегревателя состоит из двух независимых потоков.
Температура перегретого пара регулируется двумя вспрысками собственного
конденсата в пароохладитель.
В конвективном газоходе за пароперегревателем размещены
водяной экономайзер и трубчатый воздухоподогреватель, скомпонованные «в
рассечку».
Экономайзер состоит из двух ступеней, выполненных из гладких труб
0 32х4 мм (сталь 20).
Кубы воздухоподогревателя выполнены из труб 0 40х1,5 мм (Ст. 3).
Блоки водяного экономайзера и воздухоподогревателя установлены один
на другой и сварены между собой плотным швом, чтобы исключить присосы холодного
воздуха.
|
Рис. 102. Вид сверху и
горизонтальные разрезы котла Е-420-13,8-560 БТ (БКЗ-420-140-7) |
Топочная камера и
пароперегреватель подвешены к собственному каркасу.
Конвективная шахта установлена на портале.
Котел оборудован
тепловой камерой для совместной изоляции перепускных труб и камер котла.
Обмуровка котла
представляет собой натрубную изоляцию из вулканитовых плит или асбестовой намыленной массы.
Огнеупорные материалы применены только на амбразурах горелок и гарнитуре.
Для очистки
поверхностей нагрева котла предусмотрена виброочистка
ширм; обдувочные устройства - для стен топки и
конвективных пакетов пароперегревателя, дробе- очистка - для водяного
экономайзера и воздухоподогревателя.
Котел
спроектирован с учетом возможности ремонта всех поверхностей нагрева внутри
котла, снабжен необходимой арматурой, устройствами отбора проб пара и воды, а
также контрольно-измерительными приборами.
Процессы питания
котла, регулирования температуры перегретого пара и горения автоматизированы.
Предусмотрены средства тепловой защиты.
Котел поставляют транспортабельными блоками.
Номинальная паропроизводительность, т/ч 420
Вид топлива Райчихинский
бурый уголь
Давление пара на выходе из пароперегревателя, МПа (кгс/см ) 13,8
(140)
перегретого
пара 560
питательной воды 210
уходящих газов 143
КПД (брутто) при
номинальной нагрузке, %:
расчетный 92,0
гарантийный 91,0
Расход топлива, т/ч:
натурального 90,5
условного 39,3
Аэродинамическое сопротивление тракта по стороне, мм вод.
ст.:
газовой 167
воздушной 85
Теплопроизводительность, Гкал/ч 250
Температура в воздухоподогревателе, °С: воздуха:
на входе 60
на выходе 375
газов:
на входе 484
на выходе 143
Тепловое напряжение
поперечного сечения топки, ккал/(м -ч) 2,47-10
Тепловое напряжение объема
топки, ккал/(м -ч) 103,5-10
Объем топочной камеры, м3 2,66-103
Размеры ячейки по осям колонн, м:
ширина 36
глубина 30
Высота до верха хребтовой балки, м 42
6.8. Котел Е-320-13,8-560 КТ/ДТ (БКЗ-320-140-6)
Котел
Е-320-13,8-560 КТ (БКЗ-320-140-6) предназначен для работы на каменных углях
типа Д шахты «Долинская» и других, а котел
Е-320-13,8-560 ДТ предназначен для сжигания фрезерного торфа (основное
топливо), природного газа и мазута (резервное топливо). Котлы работают с
теплофикационными турбинами на высокие параметры пара.
Конструкция
котлов - унифицированная для обеих модификаций.
Котел
вертикально-водотрубный, однобарабанный, с естественной циркуляцией, од- нокорпусный рассчитанный на
высокие параметры пара, в газоплотном исполнении,
П-образной закрытой компоновки, с уравновешенной тягой (рис. 103, 104). Рассчитан на поставку в районы с повышенной сейсмичностью.
Топочная
камера с твердым шлакоудалением. Шлакоудаление механизированное, непрерывное с
помощью шнекового транспортера и дробилок. Топочная камера призматическая,
открытого типа, с размерами в плане по осям труб составляет 12,06х7,7 м. Топка экранирована цельносварными, газоплотными испарительными стенками, выполненными из
гладких труб 0 60х6 мм с вваренной полосой размером 20х6 мм (ст. 20). Шаг между
трубами 80 мм.
В нижней части
топки фронтовой и задний экраны образуют скаты
«холодной воронки». В верхней части заднего экрана имеется аэродинамический
выступ.
|
Рис. 103. Продольный разрез
котла Е-320-13,8-560 (БКЗ-320-140-6) |
Топочные экраны
имеют 16 независимых циркуляционных контуров. Жесткость и прочность стен топки
обеспечивается поясами жесткости.
Топочное устройство на
каждой модели свое в зависимости от топлива.
|
|
На
котле Е-320-13,8-560 КТ горелочные устройства располагаются на фронтовой стене
топки в два яруса. В каждом ярусе размещаются по четыре вихревые двухпоточные горелки.
На
котле Е-320-13,8-560 ДТ четыре горелочных устройства типа «тонкие струи» со
встроенными газовыми соплами располагаются на фронтовой стене топки в один
ярус. На боковых стенах топки расположены в один ярус шесть растопочных газомазутных горелок (по три горелки на стену).
Барабан
котла сварной конструкции с внутренним диаметром 1600 мм, с толщиной стенки
112мм (сталь 16ГНМА).
Схема
испарения двухступенчатая с промывкой пара питательной водой. Первая ступень
испарения включена непосредственно в барабан котла и представляет собой сочетание
внутрибарабанных циклонов и промывочных устройств. В первую ступень включены 14 блоков топочной камеры. Вторая
ступень испарения включена в два сдвоенных блока выносных сепарационных
циклонов наружным диаметром 426 мм и два средних блока экранов топки.
Вода
из барабана к испарительным экранам поступает по стоякам диаметром 219 мм с
толщиной стенки 18 мм и опускным трубам 0 159х14 мм. Пароотводящая смесь из
топочных экранов в барабан отводится по трубам 0 159х14 мм. Все указанные трубы
выполнены из стали 20.
Пароперегреватель
радиационно-конвективного типа, размещен над топочной камерой и в
горизонтальном газоходе.
Радиационная
часть состоит из блоков ширм, выполненных из труб 0 32х4 мм (сталь 12Х1МФ), и
блоков цельносварного потолочного пароперегревателя, выполненного из труб 0
42х5 мм (сталь 20).
Конвективная
часть состоит из блоков I,
III и IV ступеней пароперегревателя, выполненных из труб 0 32х4 мм, 0 32х4,5
мм и 0 32х5 мм (сталь 20, 12Х1МФ и 12Х18Н12Т).
Тракт
пара пароперегревателя состоит из двух независимых потоков.
Температура перегретого
пара регулируется двумя впрысками собственного кон© Бойко Е.А. Конструкционные характеристики энергетических
котельных агрегатов
денсата в пароохладители
первой и второй ступеней.
В
конвективном газоходе за пароперегревателем размещены
водяной экономайзер и трубчатый воздухоподогреватель, скомпонованные «в
рассечку».
Экономайзер
состоит из двух ступеней, выполненных из гладких труб 0 32х4 мм (сталь 20).
Кубы
воздухоподогревателя выполнены из труб 0 40х1,5 мм (Ст. 3).
Блоки
водяного экономайзера и воздухоподогревателя установлены один на другой и
сварены между собой плотным швом во избежание присосов холодного воздуха.
Каркас
котла представляет собой рамную конструкцию и выполнен для поставки как в несейсмичные районы, так и в районы с сейсмичностью до 9
баллов.
Котел
подвешивается на шарнирных тягах к потолочному перекрытию каркаса.
Барабан
установлен на консольной части потолочных балок, а конвективная шахта опирается
на портал котла.
Котел
оборудован тепловой камерой для совместной изоляции перепускных труб и камер
котла, имеющей вулканитовую изоляцию.
Обмуровка
экрана топки выполнена в виде натрубной изоляции (вулканитовые плиты или напыляемая асбоперлитовая
масса).
Обмуровка
щитов конвективного газохода - накаркасная, в районе
пароперегревателя - кирпичная.
Для
очистки поверхностей нагрева топочной камеры котла и пароперегревателя от золавых отложений предусмотрены обдувочные
аппараты. Для очистки опускного конвективного газохода предусмотрена
дробеочистка.
Котел
спроектирован с учетом возможности ремонта всех поверхностей нагрева внутри
котла.
Котел
снабжен необходимой арматурой, устройствами отбора проб пара и воды, а также
контрольно-измерительными приборами.
Процессы
питания котла, регулирования температуры перегретого пара и горения автоматизированы.
Предусмотрены средства тепловой защиты.
Котел поставляется
транспортабельными блоками.
|
320 Каменный уголь
марки Д, торф*
13,8 (140) 560 230 142/165* 91/87*
-/88,2 -/30,8
-/82,2 |
Номинальная
паропроизводительность, т/ч Вид топлива
Давление пара на выходе из пароперегревателя, МПа
(кгс/см2) Темпера, °С:
перегретого пара питательной воды уходящих газов КПД
(брутто) при номинальной нагрузки, %: гарантийный
расчетный расход топлива, т/ч; условного натурального
Аэродинамическое сопротивление тракта по стороне, мм
вод. ст.:
газовой 160/219,4*
воздушной Теплопроизводительность,
Гкал/ч Температура воздуха в воздухоподогревателе, °С:
на входе
на выходе
|
3 |
|
24 36 40,2 |
Тепловое
напряжение поперечного сечения топки, ккал/(м2-ч)
Тепловое напряжение объема топки, ккал/(м3-ч) Объем топочной камеры,
м Размеры ячейки по осям колони, м:
ширина
глубина
|
68,7/98,2* 190 |
|
30 395/390 -/2,23-106* 92-103/96-103*
2,2 -103 |
Высота
до верха хребтовой балки, м
|
|
* В числителе
представлены данные по котлу Е-320-13,8-560 КТ, а в знаменателе по котлу
Е-320- 13,8-560 ДТ
6.9. Котлы Е-320-13,8-560 ГМ
(БКЗ-320-140 ГМ-8 и БКЗ-320-140ГМ-8с)
Котлы
Е-320-13,8-560 ГМ (БКЗ-320-140 ГМ-8 и БКЗ 320-140 ГМ-8 с) предназначены для
работы на родном газе и мазуте с теплофикационными турбинами на высокие параметры
пара.
Котел
вертикально-водотрубный, однобарабанный с естественной циркуляцией, од- нокорпусный, разной компоновки,
в газоплотном исполнении (рис. 105, 106).
Топочная
камера призматической формы, открытого типа с размерами в плане по осям труб
11,82х5,45 м. Топочная камера полностью экранирована цельносварными газоплотными панелями из труб 060х6 мм с шагом 80 мм и
вваренной полосой. В зоне максимальных тепловых потоков применены трубы из
стали 15ХМ, в остальной части - из стали 20.
Под
топки образован фронтовым и задним экранами.
Блоки
топочной камеры подвешены на тягах к потолочному перекрытию каркаса котла и
свободно расширяются вниз. Жесткость стен топочной камеры обеспечивается
поясами жесткости.
Топка
оборудована шестью газомазутными горелками,
расположенными в два яруса на фронтовой стене.
Топочные
экраны разделены на 16 независимых циркуляционных контуров.
Барабан
котла сварной конструкции, имеет внутренний диаметр 1600 мм с толщиной стенки
115 мм, изготовляется из листовой стали 16ГНМА.
Вода
из барабана к циркуляционным контурам первой ступени испарения подводится по
трубам наружным диаметром 219 мм с толщиной стенки 20 мм (сталь 20). Отвод пароводяной
смеси и пара из барабана, а также подвод воды в контур второй ступени испарения
осуществляется по трубам 0 133х13 мм (сталь 20).
Схема
испарения двухступенчатая с промывкой пара питательной водой. Первая ступень
испарения включена непосредственно в барабан котла и представляет собой сочетание
внутрибарабанных циклонов и промывочных устройств.
В
первую ступень испарения включены 14 независимых циркуляционных контуров. Два
контура совместно с выносными сепарационными циклонами, водоспускной и паро- отводящей системами образуют вторую ступень испарения.
Пароперегреватель
радиационно-конвективного типа размещен в топочной камере и в горизонтальном
поворотном газоходе.
|
Рис. 105. Продольный разрез
котла Е-320-13,8-560 ГМ (БКЗ-320-140 ГМ-8) |
Радиационная часть
состоит из блока ширм, выполненных из труб 0 32х4 мм (сталь 12Х1МФ), и блоков
цельносварного потолочного пароперегревателя, выполненного из труб 0 42х5 мм
(сталь 20). Конвективный пароперегреватель изготовлен из труб 0 32х4 мм и 0
32х5 мм (сталь 20, 12Х1МФ).
Выходная часть
конвективного пароперегревателя выполнена из труб 0 32х4,5 мм (сталь
12Х18Н12Т).
Горизонтальный газоход
экранирован цельносварными панелями из труб 0 42х5 мм (сталь 20) и труб 0 60х6
мм (сталь 20 и 15ХМ).
За пакетом конвективного пароперегревателя, выполненного из труб 0
32х4 мм (сталь 20, 12Х1МФ), в конвективном газоходе размещен экономайзер.
Экономайзер выполнен из труб 0 32х4 мм (сталь 20), состоит из двух ступеней.
Вторая ступень экономайзера находится в опускном экранированном газоходе. Далее
по ходу газов расположена первая ступень экономайзера.
|
24730
Рис. 106. Поперечный разрез
котла Е-320-13,8-560 ГМ (БКЗ-320-140 ГМ-8) |
Между первой и
второй ступенями экономайзера по ходу воды, «в рассечку», включена установка
для получения собственного конденсата.
Для подогрева воздуха
котел оборудован двумя параллельно работающими вращающимися регенеративными
воздухоподогревателями с диаметром ротора 5,4 м.
Тракт пара
пароперегревателя состоит из двух независимых потоков.
Температура перегретого
пара регулируется посредством комбинированного воздействия на тепловосприятие:
по газовой стороне — рециркуляцией дымовых газов, а по шаровой стороне —
впрыском собственного конденсата в пароохладителях.
Для восприятия теплового
расширения опускного конвективного газохода предусмотрен линзовый компенсатор,
расположенный в рассечке бункера дробеочистки.
Конвективный газоход в
зоне первой ступени экономайзера обшит металлическими щитами с наружной
изоляцией.
Благодаря тому что все наружные поверхности котла полностью
экранированы мембранными панелями, исключается необходимость в обмуровке
наружных поверхностей. Они только изолируются.
Изоляция
котла представляет собой натрубную изоляцию
газоходов, состоящую из вулканитовых плит или
волокнистых рулонных материалов, поверх которых наносят газоплотное
влагоустойчивое покрытие на основе поливинилацетатной дисперсии. Огнеупорные
материалы использованы для защиты труб, расположенных в подовой части топочной
камеры.
Места
прохода змеевиков и ширм пароперегревателей через цельносварные ограждения
котла закрыты специальными уплотнениями.
На
котле предусмотрена паровая обдувка поверхностей нагрева третьей и четвертой
ступеней пароперегревателя, а также дробеструйная очистка поверхностей нагрева,
расположенных в опускном конвективном газоходе.
Для
очистки поверхностей нагрева регенеративного воздухоподогревателя предусмотрены
аппараты паровой обдувки.
Котел
спроектирован с учетом возможности ремонта всех поверхностей нагрева. Снабжен необходимой арматурой, устройствами отбора проб пара
и воды, контрольно- измерительными приборами. Процессы питания котла водой,
регулирования температуры перегретого пара и горения автоматизированы.
Котел
поставляют транспортабельными блоками.
Котел
имеет две модификации: для районов с сейсмичностью 8 баллов - БКЗ-320-140 ГМ-8с
и несейсмичных районов - БКЗ-320-140 ГМ-8.
Номинальная
паропроизводительность, т/ч 320
Вид топлива Мазут,
газ
Давление пара на выходе из пароперегревателя, МПа (кгс/см2) 13,8
(140) Температура, °С:
перегретого пара 560
питательной воды 230
уходящих
газов 152/117*
КПД (брутто) при номинальной нагрузке, %:
гарантийный 93/94*
Расход топлива, т/ч:
натурального (газа - м3/ч) 22,0/23,9-103
условного 29,6 Аэродинамическое
сопротивление тракта по стороне, мм вод. ст.:
газовой 247
воздушной 378,9
Теплопроизводительность, Гкал/ч 190
Температура воздуха в воздухоподогревателе, °С:
на входе 70
на выходе 246
Тепловое напряжение
поперечного сечения топки, ккал/(м •ч) 3,6-106/-
Тепловое напряжение объема
топки, ккал/(м" •ч) 217,3-10/-
Объем топочной камеры, м3 945
Размеры ячейки по осям колонн, м:
ширина 24
глубина 24
Высота до верха хребтовой балки, м 28,4 * В числителе значения для работы на мазуте, в знаменателе на газе
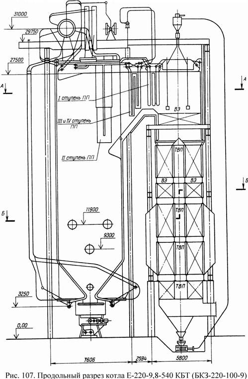
6.10. Котлы Е-220-9,8-540 КБТ
(БКЗ-220-100-9, БКЗ-220-100-9с)
Котел
Е-220-9,8-540 КБТ (БКЗ-220-100-9) работает на каменных углях и предназначен
для производства пара на теплофикационных электростанциях с теплофикационными
турбинами.
Котел
вертикально-водотрубный, однобарабанный с естественной циркуляцией, од- нокорпусный, П-образной
компоновки, в газоплотном исполнении (рис. 107, 108).
Котел
с твердым шлакоудалением, оборудован двумя шнековыми транспортерами и
дробилками.
Топочная
камера объемом 1123 м3, призматическая, открытого типа, размеры в
горизонтальном сечении по осям труб 9,34х6,73 м.
Топка
полностью экранирована газоплотными мембранными
панелями из гладких труб 0 60х6 мм с вваренной полосой толщиной 6 мм. Шаг труб
составляет 80 мм.
Фронтовой
и задний экраны в нижней части образуют скаты холодной воронки, через которую
падающий шлак непрерывно удаляется.
Топка
оборудована шестью пылеугольными вихревыми горелками, установленными встречно
на каждой боковой стене.
Экраны
топочной камеры подвешены к потолочным рамам каркаса и свободно могут
расширяться вниз.
Экраны
топки состоят из 14 самостоятельных циркуляционных контуров.
Водоподводящая система из барабана к нижним колекторам
экранов выполнена из восьми вынесенных за каркас труб 0 219х18 мм (сталь 20).
Барабан
котла сварной конструкции, имеет внутренний диаметр 1600 мм с толщиной стенки
88 мм, выполнен из листовой стали 22К, оборудован устройствами для ускоренного
обогрева и расхолаживания.
Схема
испарения двухступенчатая. Первая ступень испарения включена непосредственно в
барабан и представляет собой сочетание внутрибарабанных
циклонов и промывочных устройств.
Вторая
ступень испарения помещена в средних циркуляционных экранах боковых стен и
включена в выносные паросепарационные циклоны с
собственной водоподводя- щей и пароотводящей системами.
Пароперегреватель
радиационно-конвективного типа. Входной радиационный потолочный
пароперегреватель выполнен газоплотным из мембранных
панелей, образованных из гладких труб 0 42х5 мм, с вваренной полосой шириной 6
мм (сталь 20). Шаг труб этого пароперегревателя составляет 80 мм.
Аналогичными
газоплотными панелями экранированы стены
конвективного пароперегревателя, которые конструктивно выполнены как
продолжение боковых экранов в верхней части топки с индивидуальным
циркуляционным контуром.
Радиационно-конвективная
часть пароперегревателя выполнена в виде ширмовых
поверхностей нагрева из труб 0 32х4 мм (сталь 12Х1МФ) и расположена в верхней
части на выходе газов из топки.
Конвективные
поверхности змеевикового типа расположены в горизонтальном поворотном газоходе
и выполнены из труб 0 32х4 мм и 0 38х5 мм (сталь 20 и 12Х1МФ).
Тракт
пароперегревателя состоит из двух неперемешивающихся
самостоятельных потоков. Температура перегретого пара регулируется
двухступенчатым впрыском собственного конденсата, получаемого в конденсаторах,
установленных на потолочной раме каркаса. Впрыск конденсата осуществляется
благодаря перепаду давлений на участке конденсатор - точка впрыска.
|
|
В конвективной шахте по
ходу газов в «рассечку» размещены экономайзер и воздухоподогреватель.
|
в-в |
Экономайзер состоит из двух ступеней и выполнен из труб 0 32х4 мм
(сталь 20). Воздухоподогреватель по трактам воздуха и газа выполнен
двухступенчатым из труб 0 40х1,5 мм (Ст. 3). Нижние, входные по воздуху кубы
воздухоподогревателя - съемные.

|
А-А ^ |
|
6 730 ------------- т по осям труб |
|
Рис.
108. Поперечный разрез котла Е-220-9,8-540 КБТ (БКЗ-220-100-9) |
|
Jb |
|
Б~Б |
|
|
Блоки экономайзера и
воздухоподогревателя установлены друг на друга и опираются на портал каркаса.
Все соединения сварены между собой, что до минимума снижает при- сосы.
Обмуровка ограждающих
цельносварных экранов котла осуществляется рулонными волокнистыми материалами
из супертонкого штапельного волокна горных пород (БСТВ). Неэкранированные
ограждения горизонтального и поворотного газоходов имеют огнеупорную кладку на
щитах каркаса. Огнеупорные материалы применены в амбразурах горелок и
гарнитуре, а также в шлаковых бункерах, размещенных под топкой.
Для очистки испарительных
и пароперегревательных поверхностей нагрева котла установлены обдувочные аппараты, а для поверхностей экономайзера и
воздухоподогревателя, размещенных в конвективном газоходе, применена
дробеустановка.
Котел разработан с учетом возможности проведения ремонта поверхностей нагрева.
Котел снабжен необходимой
арматурой, устройствами отбора проб пара и воды, контрольно- измерительными
приборами.
Процессы питания котла,
регулирования температуры перегретого пара и горения автоматизированы.
Котел поставляется
транспортабельными блоками.
Котел имеет две
модификации: для несейсмичных районов - БКЗ-220-100-9,
для районов с сейсмичностью 9 баллов - БКЗ-220-100-9с.
|
|
Топливо |
||||
|
Наименование показателей |
Экибас- тузский каменный уголь |
Кууче- кинский каменный уголь |
Киргизский уголь Ташку - мырского место- рождения |
Райчи- хинский бурый уголь |
Бурый уголь Вахру- шевского место- рождения |
|
Номинальная паропроизводительность, |
|
|
220 |
|
|
|
Давление пара на выходе из
пароперегревателя, МПа (кгс/см2) |
|
|
9,8(100) |
|
|
|
Температура, °С: перегретого
пара на выходе питательной воды |
540
215 |
||||
|
уходящих газов |
137 |
135 |
140 |
153 |
140 |
|
КПД (брутто) гарантийный, % |
91,4 |
91,0 |
91,36 |
90,0 |
91,36 |
|
Расход топлива, условного, т/а |
20,3 |
||||
|
Аэродинамическое сопротивление
тракта по стороне, мм вод. ст.: газовой воздушной. |
111 382 |
103
302 |
101 202 |
101 202 |
134
274 |
|
Теплопроизводительность, Гкал/а |
134 |
134 |
134 |
134 |
134 |
|
Температура воздуха в воздухоподогре-
вателе,С: на входе на выходе |
30 381 |
30 363 |
45 382 |
45 382 |
30 382 |
|
Тепловое напряжение поперечного
сечения топки, ккал/(м2-ч) |
2,8-106 |
||||
|
Тепловое напряжение объема
топки, ккал/(м3-ч) |
128,9-103 |
||||
|
Размеры ячейки по осям колонн, м: ширина глубина |
30 24 |
||||
|
Высота до верха хребтовой балки, м |
33,5 |
||||
6.11. Котел Е-220-9,8-540 ДТ
(БКЗ-220-100-11с)
Котел
Е-220-9,8-540 ДТ (БКЗ-220-100-11с) работает на болгарских лигнитах и предназначен
для поставки в Болгарию.
Котел
вертикально-водотрубный, однобарабанный, с естественной циркуляцией, од- нокорпусный, башенной открытой
компоновки в газоплотном исполнении (рис. 109).
Котел
имеет твердое шлакоудаление, оборудован шнековымм
транспортерами и дробилками. Котел спроектирован для условий работы в районах с
сейсмичностью 8 баллов.
Топочная
камера призматической формы, открытого типа, с размерами в плане по осям труб
8,1х8,0 м.
Топочная
камера полностью экранирована цельносварными газоплотными
панелями из труб 0 60х5 мм с вваренной полосой (сталь 20). Шаг трубы составляет
80 мм. В верхней части топки экраны образуют сужение или пережим. Верхняя
часть ограждений газохода, начиная с пережима и выше, выполнена также газоплотной из труб 0 42х5 мм с вваренной полосой (сталь
20). Сопряжение между трубами 0 60 и 42 мм осуществляется через переходы.
Топка
оборудована четырьмя угловыми прямоточными горелками, расположенными по
касательной, к условному цилиндру 0 1000 мм, ось которого совпадает с осью
топки.
В
верхней части топки в экранированном газоходе между первой и третьей ступенями
пароперегревателя по углам расположены четыре газозазорных
окна.
Блоки
топочной камеры подвешены на тягах к потолочному перекрытию каркаса котла и
свободно расширяются вниз.
Жесткость
и прочность стен топочной камеры обеспечивается поясами жесткости.
Топочные
экраны разделены на 14 независимых циркуляционных контуров.
Барабан
котла сварной конструкции, имеет внутренний диаметр 1600 мм с толщиной стенки
88 мм, изготовляется из листовой стали 22К.
Вода
из барабана к испарительным экранам подается по двум стоякам 0 426 мм (сталь
20). Подвод воды из барабана к стоякам и отвод из них к нижним камерам экранов
идет по трубам 0 219х18 мм (сталь 20).
Схема
испарения воды двухступенчатая с промывкой пара питательной водой.
Первая
ступень испарения включена непосредственно в барабан котла и представляет
собой сочетание внутрибарабанных циклонов и
промывочных устройств.
В
первую ступень испарения включены 12 независимых циркуляционных контуров.
Два
контура совместно с выносными сепарационными циклонами, водоопускной
и пароотводящей системами образуют вторую ступень
испарения.
Пароперегреватель
радиационно-конвективного типа расположен в вертикальном газоходе. Он состоит
из трех ступеней.
Первая
ступень пароперегревателя выполнена из труб 0 32х4 мм (сталь 20) в виде пакетов
труб.
Вторая
ступень представляет собой горизонтальные ширмы на выходе из топки. Ширмы
выполнены из труб 0 38х4 мм (сталь 12Х1МФ).
Третья
ступень, расположенная между первой и второй, выполнена из труб 0 32х4 мм и 0
32х5 мм (сталь 12Х1МФ).
Трубы,
экранирующие верхнюю часть котла, расположены над пережимом топки и включены в
тракт пароперегревателя.
Тракт
пара пароперегревателя состоит из двух независимых потоков.
Температура
перегретого пара регулируется впрыском питательной воды в двух ступенях
впрыскивающих пароохладителей.
За
пароперегревателем по ходу газов в верхней части экранированного газохода помещен
экономайзер, который разделен на две ступени. Экономайзер выполнен из труб 0
32х4 мм (сталь 20).
Для
подогрева воздуха котел оборудован регенеративным воздухоподогревателем и
вынесен за пределы котла. Регенеративный воздухоподогреватель поставляется
Болгарией.
Пароперегреватель
и экономайзер подвешены к балке собственного каркаса.
|
|
|
А -А |
|
59908 |
|
Рис. 109.
Продольный разрез котла Е-220-9,8-540 ДТ (БКЗ-220-100-11с) |
Благодаря тому, что
все наружные поверхности нагрева котла полностью экранированы газоплотными панелями, отпадает необходимость в обмуровке
наружных поверхностей котла, они только изолируются.
Изоляция котла является патрубной изоляцией газохода, состоящей из вулканито-
вых плит или волокнистых рулонных материалов, поверх
которых наносится газаплотное влагоустойчивое
покрытие.
Огнеупорные материалы
применяются в амбразурах горелок, гарнитуре, а также для шлаковых бункеров,
размещенных под топкой.
Для очистки поверхностей
нагрева котла предусмотрена паровая обдувка. Для очистки поверхностей нагрева
регенеративного воздухоподогревателя предусмотрены аппараты паровой обдувки
(поставки Болгарии).
Котел спроектирован с учетом
возможности ремонта всех поверхностей нагрева. Котел снабжен необходимой
арматурой, устройствами отбора проб пара и воды, контрольно-измерительными
приборами.
Процессы
питания котла, регулирования температуры перегретого пара и горения
автоматизированы.
Котел поставляют транспортабельными блоками.
Технические характеристики
Номинальная паропроизводительность, т/ч 220
Вид топлива Лигниты
болгарские
Давление пара на выходе из пароперегревателя, МПа (кгс/см2) 9,8
(100) Температура, °С:
перегретого
пара на выходе 540
питательной воды 218
уходящих газов 169
КПД (брутто) при номинальной нагрузке,
гарантийный % 89
Расход топлива, условного, т/ч 21,4
Аэродинамическое сопротивление тракта по стороне, мм вод.
ст.:
воздушной 50
газовой 273
Теплопроизводительность, Гкал/ч 135
Температура воздуха в воздухоподогревателе, °С:
на входе 50
на выходе 300
Тепловое напряжение поперечного сечения топки, ккал/(м -ч) 2,83-10
Тепловое напряжение объема, топки, ккал/(м3-ч) 115,8-103
Объем топки, м 1,3-103
Размеры ячейки по осям колонн, м:
ширина 30
глубина 27
(без РВП)
Высота, м 60
6.12. Котел Е-220-9,8-540 БТ
(БКЗ-220-100-12с)
Котел
Е-220-9,8-545 БТ (БКЗ-220-100-12с) предназначен для работы на болгарских бурых
углях.
Котел
вертикально-водотрубный, однобарабанный, с естественной циркуляцией, од- нокорпусный, башенной открытой
компоновки в газоплотном исполнении (рис. 110).
Котел
имеет твердое шлакоудаление, выполненное шнековыми транспортерами и дробилками.
Котел спроектирован для использования в районах с сейсмичностью 8 баллов.
Топочная
камера призматической формы, открытого типа с размерами в плане по осям труб
7,9х8,0 м.
Топочная
камера полностью экранирована цельносварными газоплотными
панелями из труб 0 60х5 мм с вваренной полосой (сталь 20). Шаг труб составляет
80 мм. В верхней части топки экраны образуют сужение или пережим. Верхняя часть
ограждений газохода выполнена также газоплотной из
труб 0 42х5 мм с вваренной полосой (сталь 20). Сопряжения между трубами
диаметром 60 и 42 мм осуществляются через переходы.
|
А-А 56408
|
Топка оборудована
четырьмя угловыми прямоточными горелками, расположенными по касательной к
условному цилиндру диаметром 1000 мм, ось которого совпадает с осью топки.
В верхней части
топки в экранированном газоходе между первой и третьей ступенями
пароперегревателя по углам газохода расположены четыре газозаборных
окна.
Блоки топочной
камеры подвешены на тягах к потолочному перекрытию каркаса котла и свободно
расширяются вниз. Жесткость и прочность стен топочной камеры обеспечиваются
поясами жесткости.
Топочные
экраны разделены на 14 независимых циркуляционных контуров.
Барабан
котла сварной конструкции, имеет внутренний диаметр 1600 мм и толщину стенки 88
мм и изготовляется из листовой стали 22К.
Вода
из барабана к испарительным экранам подается по двум стоякам диаметром 426 мм
(сталь 20). Подвод воды из барабана к стоякам и отвод из стояков к нижним камерам
экранов идет по трубам 0 219х18 мм (сталь 20).
Схема
испарения воды двухступенчатая с промывкой пара питательной водой. Первая
ступень испарения включена непосредственно в барабан котла и представляет собой
сочетание внутрибарабанных циклонов и промывочных
устройств.
В
первую ступень испарения включены 12 независимых циркуляционных контуров.
Два
контура совместно с выносными сепарационными циклонами, водоопускной
и пароотводящей системами образуют вторую ступень
испарения.
Пароперегреватель
радиационно-конвективного типа расположен в вертикальном газоходе. Он состоит
из четырех ступеней.
Первая
ступень пароперегревателя из труб 0 32х4 мм (сталь 20) выполнена в виде пакетов
руб.
Вторая
ступень представляет собой горизонтальные ширмы, расположенные на выходе из
топки. Ширмы выполнены из труб 0 38х4 мм (сталь 12Х1МФ).
Третья
ступень, расположенная между первой и второй ступенями, выполнена из труб 0
32х4 мм и 0 32х5 мм (сталь 12Х1МФ).
Трубы,
экранирующие верхнюю часть котла, расположенные над пережимом топки, включены в
испарительные поверхности.
Тракт
пара пароперегревателя состоит из двух независимых потоков.
Температура
перегретого пара регулируется впрыском питательной воды в двух ступенях
впрыскивающих пароохладителей.
За
пароперегревателем по ходу газов в верхней части экранированного газохода расположен
экономайзер, который разделен на две ступени. Выполнен экономайзер из труб 0
32х4 мм (сталь 20).
Для
подогрева воздуха котел оборудован регенеративным вращающимся воздухоподогревателем,
вынесенным за пределы котла.
Регенеративный
воздухоподогреватель поставляется Болгарией.
Пароперегреватель
и экономайзер подвешены к балкам собственного каркаса.
Благодаря
тому, что все наружные поверхности нагрева котла полностью экранированы газоплотными панелями, отпадает необходимость в обмуровке
наружных поверхностей котла, они только изолируются.
Изоляция
котла является натрубной изоляцией, состоящей из вулканитовых плит или волокнистых рулонных материалов,
поверх которых наносится газаплотное влагоустой-
чивое покрытие.
Огнеупорные
материалы применены в амбразурах горелок, гарнитуре, а также для шлаковых бункеров,
размещенных под топкой;
Для
очистки поверхностей нагрева котла предусмотрена паровая обдувка, для очистки
поверхностей нагрева регенеративного воздухоподогревателя - аппараты паровой обдувки.
Котел
спроектирован с учетом возможности ремонта всех поверхностей нагрева.
Котел
снабжен необходимой арматурой, устройствами отбора проб пара и воды, контрольно-измерительными
приборами. Процессы питания котла, регулирования температуры перегретого пара
и горения автоматизированы. Предусмотрены средства тепловой защиты.
Котел
поставляют транспортабельными блоками.
Номинальная паропроизводительность, т/ч 220
Вид топлива Болгарский
бурый
уголь
Давление пара на выходе из пароперегревателя,
МПа (кгс/см2) 9,8 (100) Температура, °С:
перегретого пара на выходе 540
питательной воды 218
уходящих газов 170
КПД (брутто) при номинальной нагрузке, гарантийный, % 87,5
Расход топлива, условного, т/ч 21,1
Аэродинамическое сопротивление тракта по стороне, мм вод.
ст.:
газовой 232
воздушной 55
Теплопроизводительность, Гкал/ч 132
Температура воздуха в воздухоподогревателе, °С:
на входе 50
на выходе 278
Тепловое
напряжение поперечного сечения топки, ккал/(м2-ч) 2,79-10[1]
Тепловое напряжение объема топки, ккал/(м
- ч) 111,1-10
Объем топки, м3 1,33-103
Размеры ячейки по осям колонн, м:
ширина 30
глубина 21,6
(без РВП)
Высота, м 58,5
|
tn о Kc Я
О W > £ о 1 £ О а; X S съ
Н £ 3 ^ о QJ а: |
|
30060 |

|
26730 |
|
24900 |
|
28200 |
|
10400 |
|
27480 |
|
|
|
22881 Шступень /7/7 |
|
|
|
|
|
|
|
to о |
![]()
|
л о Я |
|
в |
|
|
|
О S S СУ |
А -А 5-5
|
|
|
|
№
N-
6650
|
|
|
6000 |
|
ш® |
|
7250 |
Выдирается \ 7250
|
|
|
о оь |
(и кампонобке
Рис.
111. Котел Е-220-9,8-540 Г (БКЗ-220-100-Г1)
Подвод
воды из барабана к стоякам и отвод из стояков к нижним камерам экранов идет по
трубам 0 219х18 мм (сталь 20).
Схема
испарения воды двухступенчатая с промывкой пара питательной водой. Первая
ступень испарения включена непосредственно в барабан котла и представляет собой
сочетание внутрибарабанных циклонов и промывочных
устройств. В первую ступень испарения включены 12 самостоятельных
циркуляционных контуров.
Два
контура вместе с выносными сепарационными циклонами, водоопускной
и па- роотводящей системами
образуют вторую ступень испарения.
Пароперегреватель
радиационно-конвективного типа. Радиационная часть выполнена
в виде ширмовых поверхностей нагрева из труб 0 32х4
мм (сталь 12Х1МФ) и ограждений конвективного газохода (потолок, боковые и
задняя стены), выполненных из цельносварных мембранных панелей из труб 0 60х5
мм (сталь 20) с вваренной полосой толщиной 6 мм (сталь 20) и шагом труб 80 мм.
Конвективная
часть пароперегревателя состоит из змеевиков 0 32х5 мм (сталь 20, 12Х1МФ).
Температура
перегретого пара регулируется впрыском собственного конденсата, рециркуляцией
дымовых газов в воздушный тракт перед горелками, а также за счет изменения
положения ядра факела при работе на разных топливных режимах.
Водяной
экономайзер кипящего типа, гладкотрубный, змеевиковый, состоит из двух
последовательных ступеней, изготовлен из труб 0 32х4 мм (сталь 20).
Котел
оборудован подогревателем доменного газа и трубчатым воздухоподогревателем,
расположенным в отдельной выносной колонке.
Кубы
подогревателя доменного газа выполнены из труб 0 42х3,5 мм (сталь 20), кубы
воздухоподогревателя - из труб 0 40х1,5 мм (Ст. 3).
Каркас
котла представляет собой пространственную рамную конструкцию, состоящую из
колонн, балок и верхнего потолочного перекрытия, опирающегося на колонны.
Обмуровка
котла и выносной колонки представляет собой изоляцию из вулканито- вых
плит или волокнистых рулонных материалов. Огнеупорные материалы применяются
только в амбразурах и гарнитуре.
Котел
снабжен необходимой арматурой гарнитурой, устройствами для отбора проб пара и
воды, а также контрольно-измерительными приборами. Процессы питания котла,
регулирования температуры пара и горения автоматизированы. Предусмотрены
средства тепловой защиты.
Узлы
котла выполнены в виде законченных транспортабельных блоков.
|
220
Газ 9,8
(100) |
Котел выпускается
для установки в закрытом помещении в несейсмичных
районах.
Номинальная паропроизводительность,
т/ч Вид топлива
|
540 215 |
Давление
пара, МПа (кгс/см2) Температура, °С:
пара
питательной
воды
|
|
уходящих газов КПД (брутто) при номинальной нагрузке, %
Аэродинамическое
сопротивление тракта по газовой стороне, мм вод. ст.
Теплопроизводительность, Гкал/ч
Температура воздуха в
воздухоподогревателе, °С:
на
входе
на выходе
|
158/143* 91/93,8* |
|
303,2 135 30 202 3,9-108 |
Тепловое
напряжение поперечного сечения топки, ккал/(м2-ч)
Тепловое напряжение объема топочной камеры, ккал/(м3-ч)
Объем топочной камеры, м3
Размеры ячейки котла по осям колонн, м;
ширина
глубина
|
181,6-103 809 24,0 30,0 31,0 |
Высота
до верхней хребтовой балки, м
|
|
* В числителе значение при сжигании 90 % доменного и 10 %
коксового газа, в знаменателе при сжигании природного газа
6.14. Котел Е-210-13,8-560 КБТ (БКЗ-210-140-9)
Котел
Е-210-13,8-560 КБТ (БКЗ-210-140-9) предназначен для работы на каменных и бурых
углях на тепловых электростанциях с теплофикационными турбинами.
Котел
вертикально-водотрубный, однобарабанный с естественной циркуляцией, на высокие
параметры пара, однокорпусный П-образной закрытой компоновки в газоплотном исполнении (рис. 112, 113).
Котел
имеет твердое шлакоудаление, снабжен двумя шнековыми транспортерами.
Топочная
камера объемом 1123 м3 призматической формы открытого типа с размерами
в плане по осям труб 9,34х6,73 м.
Топочная
камера полностью экранирована цельносварными мембранными газоплотными
панелями, образованными из гладких труб 0 60х6 мм с вваренной полосой толщиной
6 мм (сталь 20). Шаг труб составляет 80 мм.
Фронтовой
и задний экраны в нижней части образуют скаты холодной воронки, через которую
выпадающий шлак непрерывно удаляется.
Топка
оборудована шестью пылеугольными вихревыми горелками, расположенными по три на
каждой боковой стене в форме треугольника вершиной вниз.
Блоки
топочной камеры подвешены на тягах к потолочным рамам каркаса котла и свободно
расширяются вниз. Жесткость стен топочной камеры обеспечивается поясами
жесткости.
Барабан
котла сварной конструкции, имеет внутренний диаметр 1600 мм с толщиной стенки
112 мм и изготовляется из листовой стали 16ГНМА.
Барабан
оборудован устройствами для ускоренного обогрева и расхолаживания.
Вода
из барабана к нижним коллекторам экранов подается по восьми вынесенным за
каркас трубам 0 219х20 мм (сталь 20).
Схема
испарения воды двухступенчатая с промывкой пара питательной водой.
Первая
ступень испарения включена непосредственно в барабан котла и представляет
собой сочетание внутрибарабанных циклонов и
промывочных устройств.
Вторая
ступень состоит из средних циркуляционных экранов боковых стен, включенных в
выносные паросепарационные циклоны, и имеет
собственную водоспускную и пароотводящую системы.
Пароперегреватель
радиационно-конвективного типа, состоит из четырех ступеней. Входной потолочный
радиационный пароперегреватель выполнен газоплотным
из мембранных панелей, образованных из гладких труб 0 42х5 мм, с вваркой полосы толщиной 6 мм (сталь 20).
Шаг
труб составляет 80 мм.
Полурадиационная
часть пароперегревателя выполнена в виде ширмовых
поверхностей нагрева из труб 0 32х5 мм (сталь 12Х1МФ), расположена в верхней
части на выходе из топки и является второй ступенью.
|
|
Конвективные
поверхности пароперегревателя расположены в горизонтальном поворотном газоходе
и выполнены из труб 0 32х4,5 мм (сталь 20, 12Х1МФ) и выходной панели из стали
12Х18Н12Т и представляют собой первую, третью и четвертую ступени.
Тракт пара
пароперегревателя состоит из двух независимых потоков.
Температура перегретого
пара регулируется двухступенчатым впрыском собственного конденсата,
получаемого в конденсаторах, установленных на потолочной раме каркаса. Впрыск
конденсата осуществляется за счет перепада давлений на участке конденсатор -
точка впрыска.
В конвективном газоходе расположены «в рассечку» водяной экономайзер и трубчатый
воздухоподогреватель.
Водяной
экономайзер имеет две ступени и выполнен из труб 0 32х4 мм (сталь 20).
Трубчатый
воздухоподогреватель выполнен из труб 0 40х1,5 мм (Ст. 3). Воздухоподогреватель
по трактам воздуха и газов является двухпоточным.
Нижние, входные по воздуху кубы - съемные.
Блоки
воздухоподогревателя и водяного экономайзера установлены друг на друге и
опираются на портал каркаса. Все соединения сварены между собой, что до
минимума снижает присосы.
Обмуровка
цельносварных трубчатых экранов котла осуществляется рулонными волокнистыми
материалами.
Ограждениями
горизонтального и поворотного газохода служит огнеупорная кладка на щитах
каркаса. Огнеупорные материалы применены также в амбразурах горелок, гарнитуре
и шлаковых бункерах.
Очистка
экранов топочной камеры производится маловыдвижными
аппаратами паровой обдувки. Поверхности нагрева пароперегревателя очищаются
паром с помощью выдвижных аппаратов обдувки. Очистка поверхностей нагрева в
конвективной шахте осуществляется с помощью устройств дробечистки.
|
Таблица 14 Технические характеристики
|
|||||||||||||||||||||||||||||||||||||||||||||||||||||||||||||||||||||||||||||||||||||||||||||||||||||||||||||||||||||||||||||||||||||||||||||||||||||||||||||||||
Котел спроектирован с учетом возможности ремонта всех поверхностей
нагрева. Котел снабжен необходимой арматурой, устройствами для отбора проб пара
и воды, контрольно-измерительными приборами.
Процессы
питания котла, регулирования температуры перегретого пара и горения
автоматизированы. Предусмотрены средства тепловой защиты. Котел поставляют
транспортабельными блоками.

Рис. 113. Горизонтальныеные разрезы котла Е-210-13,8-560 КБТ
(БКЗ-210-140-9)
[1] 13. Котел Е-220-9,8-540 Г
(БКЗ-220-100-Г1)
Котел Е-220-9,8-540 Г (БКЗ-220-100-Г1) предназначен
для работы на доменном, коксовом и природном газах. Котел устанавливается на ТЭЦ-ПВС предприятий черной металлургии.
Котел
вертикально-водотрубный, однобарабанный, с естественной циркуляцией, сомкнутой
П-образной компоновки в газоплотном исполнении,
предназначен для работы с уравновешенной тягой (рис. 111). Точная камера и опускной
конвективный газоход экранированы мембранными панелями с применением гладких
труб 0 60х5 мм (сталь 20), с вваркой полосы толщиной
6 мм (сталь 20) и шагом труб 80 мм. Размер топки по осям труб 5,93х7,58 м. Блоки топочной камеры и конвективного газохода
подвешены на тягах к потолочному перекрытию каркаса котла и свободно
расширяются.
Жесткость
и прочность стен котла обеспечивается поясами жесткости.
Топочная
камера призматическая, открытого типа. Под топки образован задним экраном,
имеет наклон 15° к горизонтали. Фронтовой экран вверху образует наклонный потолок
топки; задний экран уходит в трехрядный фестон.
Топка
оборудована четырьмя прямоточно-вихревыми горелками, расположенными попарно на
боковых стенах топки.
Барабан
котла сварной, имеет внутренний диаметр 1600 мм с толщиной стенки 88 мм (сталь
22К).
Вода
из барабана к испарительным экранам подается по двум стоякам диаметром 426 мм
(сталь 20).