Рессорное подвешивание предназначается для смягчения ударов, воспринимаемых колесной парой при прохождении неровностей пути, и служит для передачи нагрузки от веса кузова и тележки на буксь; и равномерного распределения этой нагрузки между осями.
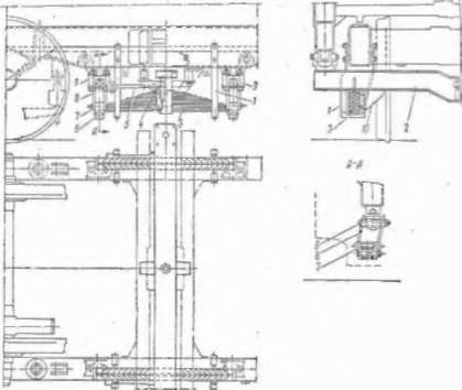
Электровозы ЧС! и ЧСЗ имеют тройное рессорное подвешивание. Кузов опирается на каждую тележку через люлечную балку 2 {рис. 6), лежащую на двух продольных люлечных рессорах 3; от тележки нагрузка передается на каждую буксу / (рис. 7) через амортизатор 5. кабрэнны;; из резиновых шайб, н лодбуксовую листовую рессору 6.
Лгс.течная подвеска применена для более плавного входа элект-
ровоза в кривые участки пути, что особенно важно при движении с высокими скоростями. Схема люлечксго подвешивания приведен* на рис. 8. Нагрузка от весакузоэа через люлечкую бэлку 1 к люлеч-ные рессоры 2 передается на шарнирные люлечные подвески -3, установленные под углом 16,5° к вертикали. Верхней частью под-вески шарнпрно крепятся к раме тележки.

Рис. 6. Рессорное подвешивание кузова
При движении по прямому участку пути подзески левой и правой сторон находятся под одинаковым углом к вертикали (рис. б, б). продольные оси кузова и тележки совпадают. При зходе з кривую тележка, направляемая наружным рельсом и гребнем бандажа передней колесной пары, поворачивается и одновременно смещается в сторону. Кузен же продолжает прямолинейное движение. При этом подвески отклоняются от среднего положения, как показано на рис. 8, а пунктиром, и углы наклона подвесок изменяются (рис. 8, в). За счет такого отклонения подвесок появляется горизонтальная сила, стремящаяся вернуть люльку в положение равновесия. Эта сила действует на люлечную белку, а следовательно, и на кузов, заставляя его отклоняться вслед за тележкой.


Применение такой нежесткой связи кузова с тележкой в поперечном направлении дает возможность снизить воздействие электровоза на путь при входе в кривые участки, так как з первый момент на рельс воздействует сила только от массы тележки, а затем постепенно, по мере отклонения люлечного подвешивания, включается масса кузова.
Люлечная балка 2 (см. рис. б) состоит из штампованного U-образного стального элемента с толщиной стенки 10 мм, закрытого
сверху стальным листом, который приварен сплошным швом; она образует в сечении замкнутый четырехугольник. Снизу балки приварены кронштейны 10, к которым крепятся рессоры 8, Каждая рессора крепится к кронштейну шестью болтами М20. К балке 2 приварены сбоку кронштейны 4, в которых предусмотрены отверстия с втулками. С помощью валиков кронштейны соединяются со специальными тягами 5. Вторыми концами, имеющими резиновые амортизаторы, тяги 5 шарннрно укреплены на-фаме тележки. Таким образом, эти тяги снимают продольные усилия с листовой рессоры и фиксируют положение балки 2 относительно рамы тележки, но не препятствуют ее перемещению по зертнКали (за счет прогиба рессор) и в поперечном направлении за ,'ечег отклонения люлечных подвесок.
Люлечная рессора состоит из 12 листов профильной кремнисто-хромистой стали толщиной 16 мм и шириной 120 мм, из них три листа коренных длиной 1 400 мм. Верхний лист по концам имеет ушки для шарнирного крепления (на валиках) к люлечным подвескам. Хомут рессоры имеет специальный фланец с шестью отверстиями для крепления к кронштейну 10 поперечной балки. От продольного сдвига в хомуте листы предохраняются с помощью выдавленных шарообразных углублений и выступов, заходящих в соседний верхний лист или отверстие в хомуте; снизу листы удерживаются в хомуте клином с прокладками. Жесткость каждой рессоры составляет 150 кг/мм.
Каждым концом люлечная рессора связана через валик 6 \\ шарнир 7 с люлечными подвесками 8. Последние опираются а верхней части на фигурное седло 9, укрепленное на кронштейне ь нижней
части боковины рамы тележки. К раме тележки крепятся также предохранительные скобы /, устраняющие возможность падения рессоры на путь в случае обрыва люлечных подвесок.
Передача вертикальной нагрузки от тележки на буксы / осуществляется следующим образом. В боковинах рамы тележки предусмотрены кронштейны 2 (см. рис. 7), расположенные около буксовых направляющих. К этим кронштейнам шарннрно на валиках 3 крепятся опорные болты 4. Опорные болты изолированы от рамы тележки с помощью пластмассовых втулок я шайб, установленных на валиках 3 для того, чтобы исключить прохождение тягового тока от тележки к колесной паре через рессорную систему и роликовые подшипники буксы. В средней части этого болта имеется резьба, на которой находятся гайка и контргайка, с помощью которых можно изменять расстояние от кронштейна 2 до пакета резиновых амортизаторов к регулировать нагрузку на шейку оси.
Пакет резиновых амортизаторов состоит из четырех резиновых шайб 9, располагаемых между стальными шайбами 8. Стальные шайбы имеют по наружному и внутреннему диаметру буртики, которые предохраняют резиновые шайбы от сдвига. Верхняя н нижняя стальные шайбы имеют большую толщину по сравнению со средними шайбами. Нижняя шайба, кроме того, имеет поперечный полукруглый паз, через который пакет опирается на фигурную шайбу 7, устанавливаемую на концевую часть подбуксовой листовой рессоры 6.
Эта рессора имеет жесткость 290 кг мм. Она состоит из девяти листов профильной стальной полосы толщиной 16 ям и шириной 120 ММ, из них три листа коренные длиной 1 158 ММ. Листы рессоры обхватываются хомутом и от продольного сдвига предохраняются выдавленными выступами и углублениями. Листы закрепляются в хомуте с помощью прокладки и клина. На концах коренных листов рессоры предусмотрены отверстия, через которые проходят опорные болты 4.
Рессора подвешивается на буксу. Для этого хомут рессоры обхватывается с обеих сторон специальными щеками 10, имеющими цапфы, которые входят в соответствующие отверстия приливов в нижней части буксы. Обе щеки 10 связаны между собой болтам н/,2. Для устранения износов приливов буксы в их отверстия запрессованы втулки 11, а которых вращаются цапфы щек 10.
Валики и втулки рессорного подвешивания для уменьшения износа закаливаются до высокой твердости и в процессе эксплуатации смазываются.
|
|